map icon

Maison mitoyenne 2 pièces, excellent état, Varaždin

Varaždin
€ 730 000
2
326 m²
2

Remarque

Annonce mise à jour le 05/12/2025
Description

This description has been translated automatically and may not be accurate

référence: 14612-1

www.biliskov.com ID: 14612
Varaždin, Center
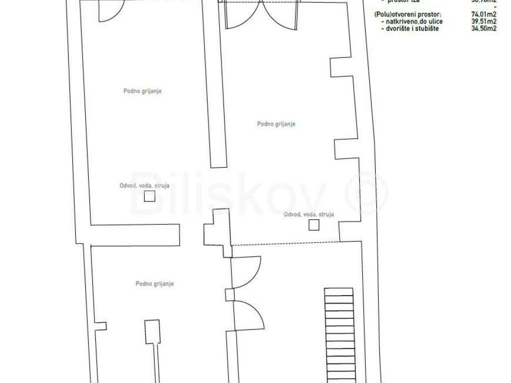
A high-quality, renovated historic terraced house with a total area of 326 m, built in the late 18th century, offering a blend of historical charm and modern luxury.
It spans three levels: ground floor, first floor, and attic.
The ground floor occupies 143 m, of which 70 m is enclosed space, currently divided into two rooms prepared for business purposes. With the possibility of converting it into a residential area, the ground floor also includes a courtyard, spacious terrace, and outdoor staircase, making this level extremely flexible.
The first floor, with a total area of 124 m, features elegantly decorated spaces: a bathroom, outdoor staircase, terrace, and a spacious open-plan kitchen with dining and living areas. The enclosed part is 80 m, providing an airy and comfortable atmosphere.
The attic, covering 66 m, includes a spacious bedroom, a modern bathroom, and a staircase, creating an intimate relaxation area.
The layout is adapted to an open-space concept, with the option of partitioning as per the owner's needs.
The thorough renovation of the house includes new underfloor heating, complete renewal of all installations, facade repair, installation of modern insulation, and window restoration, giving the building a new level of energy efficiency. The house is also equipped with a security system, including burglar-proof locks, surveillance cameras, and a remote control system, ensuring the owners' security and peace of mind.
The kitchen is custom-made and equipped with high-quality appliances, while all rooms are enhanced with carefully selected stylistic details. Some pieces of furniture may be included in the price.
The location of this exceptional property is excellent located in the very center of Varaždin, only 100 meters from the main square.
Living in the center offers a high quality of life, with all amenities needed for a comfortable and enjoyable life easily accessible.
Heating: Central gas and electric heatingJoinery: WoodenOrientation: Southeast - NorthwestEnergy Certificate: In progressPrice: 730,000Agency Fee: 2% + VAT
Si vous voulez en savoir plus, vous pouvez parler à Vedran Petrović.
Caractéristiques
Typologie
Maison mitoyenne
Transaction
Vente
Étage
Rez-de-chaussée
Superficie
326 m²
Chambres/pièces
2
Bains/douches
2
Meublé
Non
Chauffage
Collectif, au sol
Climatisation
Centralisé, froid/chaud
Autres caractéristiques
  • Porte blindée
  • Système d'alarme
Informations sur les prix
Prix
€ 730 000
Prix au m²
2 239 €/m²
Efficacité énergétique
  • Année de construction

    1901
  • État

    Excellent / Rénové
  • Chauffage

    Collectif, au sol
  • Climatisation

    Centralisé, froid/chaud
Découvrez chaque recoin de la propriété
+18
Options additionnelles

Contacter l'annonceur

Ou