Bureau - Cabinet en Location

€ 2 355/mois
157 m²
0

Remarque

Annonce mise à jour le 03/03/2026
Description

référence: EUROVILLA-962346

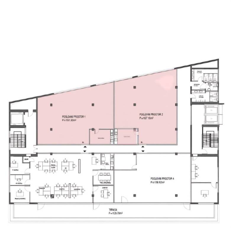
Split, Dračevac - poslovni prostor ukupne površine 157 m², smješten u novoj poslovnoj zgradi na području Dračevca u Splitu. Prostor je pogodan za različite namjene: uredske djelatnosti, IT tvrtke, call centre, medicinske ili edukacijske ustanove, showroom, uslužne djelatnosti i sl., zahvaljujući velikoj i fleksibilnoj površini.Osnovne karakteristike:Ukupna površina: 157 m²Lokacija: Split, DračevacSmješten u novoj i moderno opremljenoj poslovnoj zgradiModularan i prilagodljiv raspored prostoraVelike staklene površine i obilje prirodnog svjetlaKvalitetna infrastruktura (struja, optika, klimatizacija)Uređeni sanitarni čvoroviMogućnost formiranja više zasebnih funkcionalnih jedinicaParking:Parking mjesta se posebno plaćajuDostupna su garažna i vanjska parkirna mjestaBroj mjesta prema dogovoruDodatne prednosti:Odlična prometna povezanostReprezentativan ulaz i moderno uređeni zajednički prostoriEnergetski učinkovita zgrada moderne gradnjeProstor odmah dostupanZa više informacija, uvjete najma ili dogovor obilaska, slobodno nas kontaktirajte.... Više na eurovilla.hr, ID: 962346
Si vous voulez en savoir plus, vous pouvez parler à Igor Lozo.
Caractéristiques
Transaction
Location
Typologie
Bureau - Cabinet
Superficie
157 m²
Étage
Rez-de-chaussée
Détail de la surface

Autre

Étage
Rez-de-chaussée
Superficie
157,0 m²
Coefficient
100%
Type de superficie
Habitable
Sup. commercial
157,0 m²
Informations sur les prix
Prix
€ 2 355/mois
Prix au m²
15 €/m²
Détails des coûts
Caution
Non indiquée
Plan
Découvrez chaque recoin de la propriété
+7
Options additionnelles

Contacter l'annonceur

Ou