Maison individuelle 213 m², Baška

€ 955 000
5+
213 m²
3+

Remarque

Annonce mise à jour le 12/04/2026
Description

This description has been translated automatically and may not be accurate

référence: EI-7234


Island of Krk - Baška area, villa with swimming pool for sale in a quiet location.
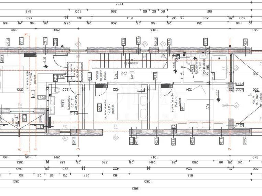
A detached house is being built on a plot of 690 m2, with an auxiliary building and a swimming pool, gross area of 213 m2, net area of 191 m2. On the ground floor of the building there is an entrance hall, bedroom, bathroom, storage room, kitchen, dining room, living room, and on the first floor there are 3 bedrooms, 2 bathrooms, a hallway, balcony and terrace. A 38 m2 swimming pool and an auxiliary building - wellness are designed. Top quality materials and equipment are used in the construction, and the property is subject to VAT. The distance from the sea is 3500 meters and the move-in is scheduled for the end of 2026.

ID CODE: EI-7234
Caractéristiques
Typologie
Maison individuelle
Transaction
Vente
Étage
1
Superficie
213 m² | commerciale 713 m²
Chambres/pièces
5+
Chambres
4
Bains/douches
3+
Balcon
Non
Terrasse
Non
Climatisation
Autonome, froid/chaud
Autres caractéristiques
  • Piscine
Détail de la surface

Habitation

Étage
1
Superficie
213,0 m²
Coefficient
100%
Type de superficie
Habitable
Sup. commercial
213,0 m²

Terrain

Étage
Rez-de-chaussée
Superficie
500,0 m²
Coefficient
100%
Type de superficie
Accessoires
Sup. commercial
500,0 m²
Informations sur les prix
Prix
€ 955 000
Prix au m²
1 339 €/m²
Efficacité énergétique
  • Année de construction

    2026
  • Climatisation

    Autonome, froid/chaud
  • Certification énergétique

    Exempt
Découvrez chaque recoin de la propriété
+15
Options additionnelles

Contacter l'annonceur

Ou