map icon

Appartement 3 chambres neuf, rez-de-chaussée, Vir

Vir
€ 260 000
3
62 m²
1
1
Terrasse

Remarque

Annonce mise à jour le 17/11/2025
Description

This description has been translated automatically and may not be accurate

référence: 32480

ZADAR, VIR - New construction! Exceptional apartment only 130 meters from the beach! 2-S2

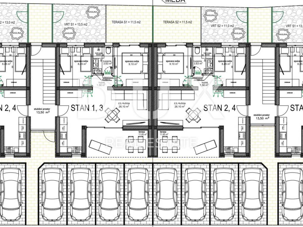
This beautiful apartment on the south side of the island of Vir is the perfect opportunity for those looking for a modern and comfortable living space near the sea. Located only 130 meters from the city's main pebble beach, this apartment offers an ideal combination of luxury, quality and practicality. The apartment is located on the ground floor of a new building and covers a net area of 62.61 m2, while the gross area reaches an incredible 108.21 m2. It consists of two spacious bedrooms, a modern kitchen, a comfortable living room and an elegant bathroom. What makes this apartment special are the two terraces - covered and uncovered - which allow you to enjoy relaxing moments in the fresh air. In addition, the apartment comes with its own garden, perfect for gardening or summer outdoor gatherings, and two parking spaces, which is a great advantage for anyone who wants easy access and security. The construction of this apartment uses top-quality materials, including first-class rectified ceramics, which ensures durability and a luxurious look to the interior. Floor heating in the living room, kitchen and bathroom with a digital thermostat provides additional comfort during the colder months, while air conditioners in each room and living room, with the possibility of control via Wi-Fi connection, ensure an optimal temperature throughout the year. All rooms are equipped with mosquito nets and electric roller shutters on all openings, which further contributes to the feeling of security and privacy. Sanitary equipment reflects refined taste and top quality, with well-known brands such as Grohe, Laufen, Kolpa and Aquaestil, which guarantee reliability and longevity. The PVC joinery is anthracite on the outside and white on the inside, creating a perfect harmony between the exterior and the interior. Glass railings made of dark glass further highlight the modern design and allow an unobstructed view of the surroundings. The special feature of this part of Vir is that it has sewage, which significantly contributes to the quality of life. Construction is scheduled to be completed by May 1, 2025, giving you plenty of time to plan your move into this fantastic home. This apartment represents a rare opportunity to invest in a property that offers everything you need for a comfortable and luxurious life at sea. The opportunity to become part of this wonderful story is simply not to be missed. Contact us as soon as possible and arrange a viewing!

Dear clients, the agency commission is charged in accordance with the General Business Conditions: www.dux-nekretnine.hr/opci-uvjeti-poslovanja

ID CODE: 32480

Josip Šestan
Agent s licencom
Mob: +385 91 799 6986
Tel: +385 91 480 8808
E-mail: josip@dux-dalmacija.com
www.dux-dalmacija.com
Si vous voulez en savoir plus, vous pouvez parler à Josip Šestan.
Caractéristiques
Typologie
Appartement
Transaction
Vente
Étage
1
Superficie
62 m² | commerciale 108 m²
Chambres/pièces
3
Chambres
2
Bains/douches
1
Balcon
Non
Terrasse
Oui
Climatisation
Autonome, froid/chaud
Détail de la surface

Habitation

Étage
1
Superficie
62,0 m²
Coefficient
100%
Type de superficie
Habitable
Sup. commercial
62,0 m²

Terrain

Étage
Rez-de-chaussée
Superficie
46,0 m²
Coefficient
100%
Type de superficie
Accessoires
Sup. commercial
46,0 m²
Informations sur les prix
Prix
€ 260 000
Prix au m²
2 407 €/m²
Efficacité énergétique
  • Année de construction

    2025
  • État

    Nouveau / En construction
  • Climatisation

    Autonome, froid/chaud
  • Certification énergétique

    Exempt
Découvrez chaque recoin de la propriété
+11
Options additionnelles

Contacter l'annonceur

Ou