Appartement 4 chambres deuxième étage, Mejaši - Sirobuja, Split

€ 443 410
4
107 m²
2
2
Oui

Remarque

Annonce mise à jour le 07/03/2026
Description

This description has been translated automatically and may not be accurate

référence: 5958

Real estate agency Angelus Real Estate offers you for sale a three-bedroom apartment of 107.44 m2 in a NEW BUILDING in Split - Mejaši district

LOCATION
The apartment is located in a very quiet location, in the southeastern part of Split and has excellent connections to other parts of the city. An exceptionally urban area of the city that has everything you need for a comfortable life. In the immediate vicinity are an elementary school, kindergartens, various shops, children's parks, a pharmacy, a public transport station. The building is located away from important utility and traffic points: Public transport - 50 m, City center (Riva) - 4 km, Zagreb-Split highway - 20 km, Split Airport - 25 km.

DESCRIPTION:
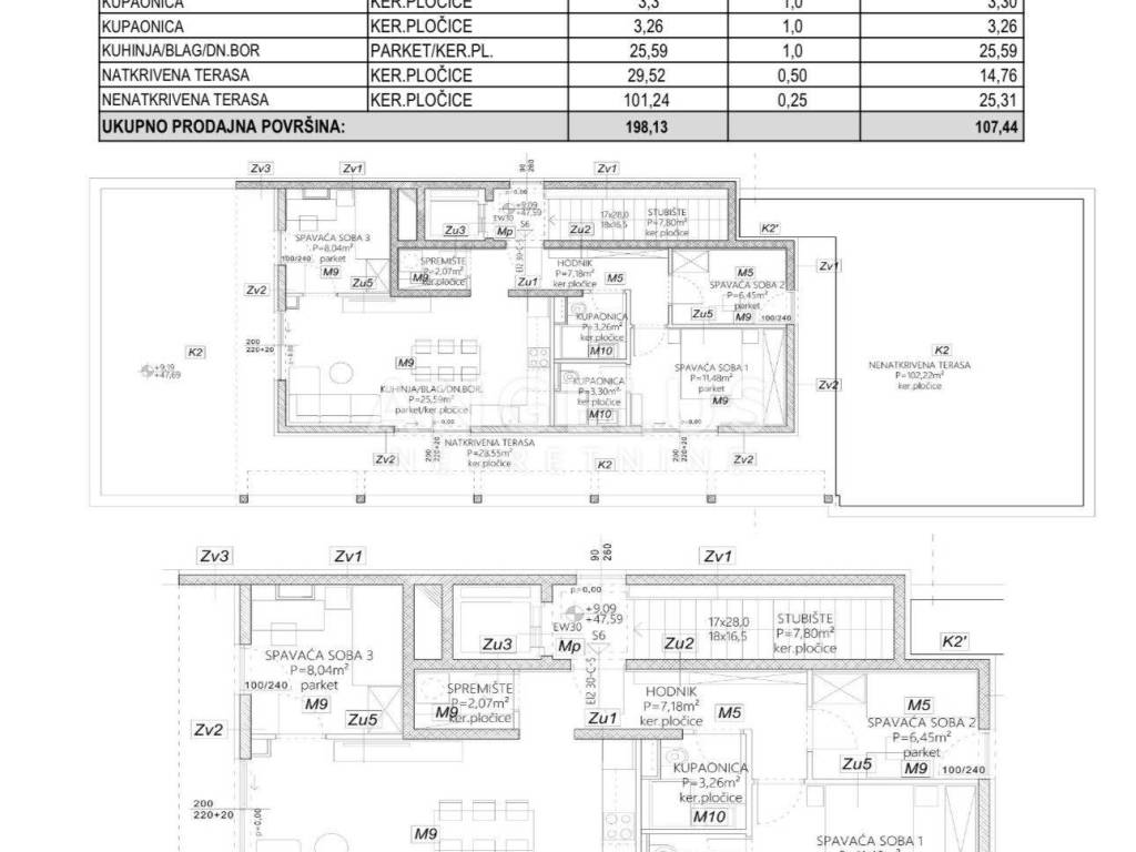
A three-bedroom apartment for sale in a new building with a total net area of 107.44 m2 (gross area 198.13 m2), located on the second floor of a small residential building. The apartment consists of an entrance hall, kitchen and dining room with living room, three bedrooms, two bathrooms, storage room, one covered terrace and one uncovered terrace. The building of beautiful architecture and high energy efficiency is built according to modern standards from very high-quality materials, with all the necessary equipment, which includes: first-class hydro and thermal insulation, anti-burglary and fire doors, quality interior joinery, elegant tiles and wooden floors and built-in air conditioning. The building has one basement garage with parking spaces, ground floor and three floors. The price of a parking space in the basement is 20,000 euros.

The investor has obtained a building permit. The planned construction start date is 11/2025. Payment is made in two phases: 30% of the total price upon signing the preliminary contract, the remaining 70% upon issuing the occupancy permit and condominium. It is important to note that with this payment method, the buyer can finance the remaining 70% from a loan.

APARTMENT S6
Hallway 7.18 m2
Storage 2.07 m2
Room1 11.48 m2
Room2 6.45 m2
Room3 8.04 m2
Bathroom 3.30 m2
Bathroom 3.26 m2
Living room with dining room and kitchen 25.59 m2
Covered terrace (29.52 x 0.50) 29.52 m2 (14.76 m2)
Uncovered terrace (101.24 x 0.25) 101.24 m2 (25.31 m2)

TOTAL: 198.13 m2 (107.44 m2)

BUYER DOES NOT PAY 3% REAL ESTATE TRANSFER TAX!

The property has great potential, whether it is a place for a quiet and quality life or as an investment for rental purposes.

For all questions and information or to arrange a viewing appointment for the property, contact us today, and at the link https://angelusnekretnine.hr/o-nama you can view our General Terms and Conditions.

For more information, please contact our agent on the mobile number 091 429 0199.

Your Angelus nekretnine d.o.o.

ID CODE: 5958

Venći Čulić Meić
Agent s licencom
Mob: +385 91 429 0199
Tel: +385 21 587 441
E-mail: venci@angelusnekretnine.hr
www.angelusnekretnine.hr
Si vous voulez en savoir plus, vous pouvez parler à Venći Čulić Meić.
Caractéristiques
Typologie
Appartement
Transaction
Vente
Étage
2 étage
Ascenseur
Oui
Superficie
107 m²
Chambres/pièces
4
Chambres
3
Bains/douches
2
Balcon
Non
Terrasse
Non
Climatisation
Autonome, froid/chaud
Informations sur les prix
Prix
€ 443 410
Prix au m²
4 144 €/m²
Efficacité énergétique
  • Climatisation

    Autonome, froid/chaud
  • Certification énergétique

    Exempt
Découvrez chaque recoin de la propriété
+2
Options additionnelles

Contacter l'annonceur

Ou