Terrain constructible en Vente

€ 130 000
4 060 m²

Remarque

Annonce mise à jour le 13/05/2026
Description

référence: IS1517328

Smješteni u srcu Istre, Štokovci su šarmantno i mirno selo poznato po svom autentičnom mediteranskom ambijentu. Okruženi zelenilom, maslinicima i vinogradima, Štokovci pružaju idealan spoj prirodnog mira i blizine urbanih sadržaja. Njihova povijest i tradicija, zajedno s toplinom lokalne zajednice, čine ovo mjesto savršenim odabirom za one koji žele uživati u istarskoj idili i ugodnom životnom ritmu. Udaljeni su svega nekoliko kilometara od poznatih turističkih destinacija i plaža, što ih čini privlačnima i za život i za odmor.

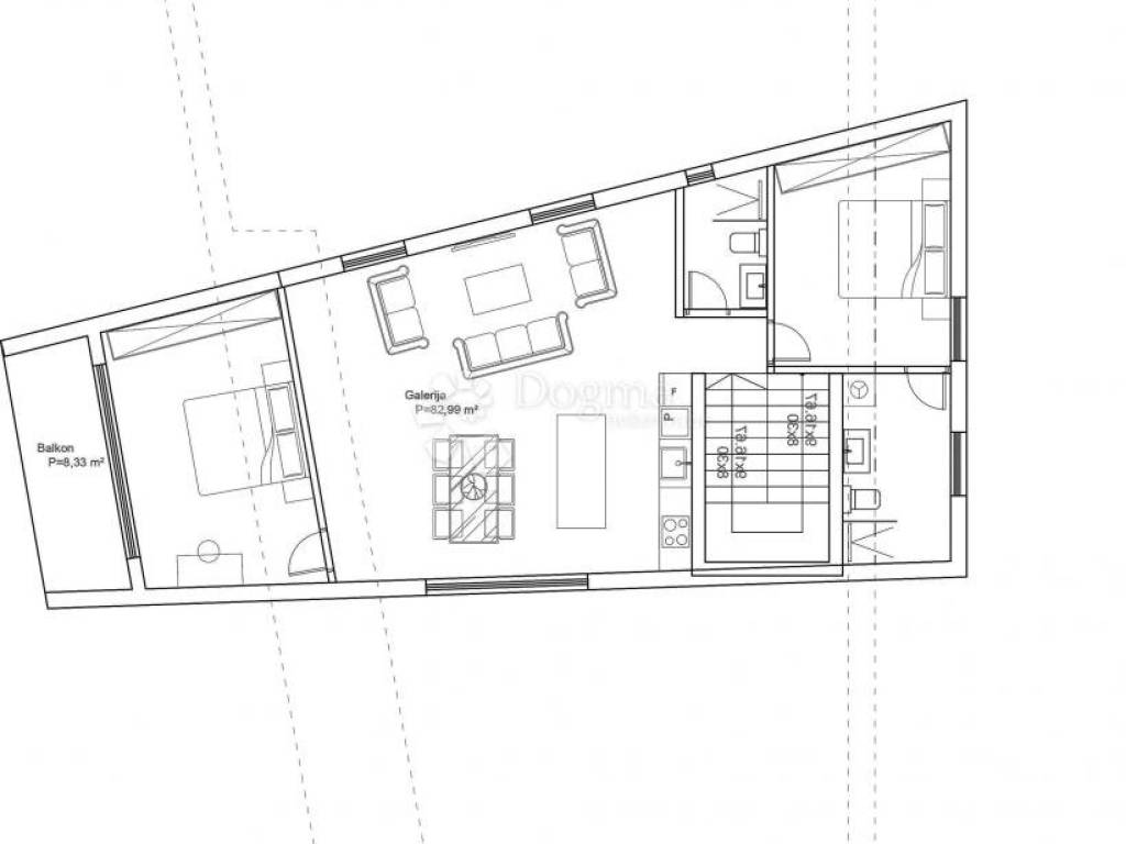
Ovo prostrano zemljište površine 4060 m sastoji se od građevinskog dijela od 1440 m i poljoprivrednog dijela od 2620 m. Posjeduje idejni projekt za modernu vilu s bazenom, idealnu za luksuzan život ili kao investiciju za turistički najam. Projekt obuhvaća kuću na dvije etaže: u prizemlju se nalazi otvoreni prostor s kuhinjom, blagovaonicom i dnevnim boravkom, dvije spavaće sobe s vlastitim kupaonicama, dodatni toalet, garaža i spremište, ukupne unutarnje površine 144,25 m, dok s terasama prizemlje doseže 224,64 m. Kat uključuje galeriju, kupaonicu i dvije terase ukupne površine 172,08 m. Na natkrivenom dijelu terase predviđena je ljetna kuhinja s kaminom, a u dvorištu bazen, savršen za uživanje u toplim istarskim danima. Projekt se ističe suvremenim dizajnom i pažljivo osmišljenim detaljima koji će zadovoljiti i najzahtjevnije kupce.

Za razgled i više detalja te savjet pri kupnji, prodaji i najmu nekretnina kontakt

SELMA BAŠIĆ
Agent s licencom
GSM: +385 98 9658170
selma.basic@dogma-nekretnine.com

ID KOD AGENCIJE: IS1517328

Selma Bašić - Rovinj
Agent s licencom
Mob: 098/965-8170
Tel: 052/639-276
E-mail: selma.basic@dogma-nekretnine.com
www.dogma-nekretnine.com
Si vous voulez en savoir plus, vous pouvez parler à Selma Bašić - Rovinj.
Caractéristiques
Transaction
Vente
Typologie
Terrain constructible
Superficie
4 060 m²
Informations sur les prix
Prix
€ 130 000
Prix au m²
32 €/m²
Découvrez chaque recoin de la propriété
+23
Options additionnelles

Contacter l'annonceur

Ou