Terrain constructible en Vente

€ 99 500
526 m²

Remarque

Annonce mise à jour le 22/01/2026
Description

référence: IS1516729

Prodaje se atraktivna građevinska parcela smještena na mirnoj lokaciji u blizini Savičente, zadnja u nizu, sa otvorenim pogledom i idealnom orijentacijom sjever-jug.

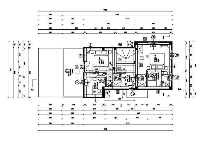
Za zemljište je već ishodovana građevinska dozvola za izgradnju moderne samostojeće vile (prizemlje + kat), ukupne bruto površine 148,33 m sa terasom od 16 m i bazen površine 40 m. Planirani objekt uključuje tri spavaće sobe, a svi potrebni priključci za vodu i struju nalaze se na zemljištu.

Vlasništvo 1/1 bez tereta!

Iskoristite priliku za ulaganje u vrhunski projekt na atraktivnoj lokaciji!

ID KOD AGENCIJE: IS1516729

Gianna Brženda - DOGMA PULA
Poslovna tajnica
Tel: 052/645 444
E-mail: pula2@dogma-istra.com
www.dogma-nekretnine.com
Si vous voulez en savoir plus, vous pouvez parler à Gianna Brženda - DOGMA PULA.
Caractéristiques
Transaction
Vente
Typologie
Terrain constructible
Superficie
526 m²
Informations sur les prix
Prix
€ 99 500
Prix au m²
189 €/m²
Découvrez chaque recoin de la propriété
+14
Annonceur
agent male

Gianna Brženda - DOGMA PULA

fiche agence
Options additionnelles

Contacter l'annonceur

Ou
agent male

Gianna Brženda - DOGMA PULA