Appartement 2 chambres rez-de-chaussée, Premantura, Pomer, Medulin

€ 340 000
2
80 m²
3
0

Remarque

Annonce mise à jour le 02/05/2026
Description

This description has been translated automatically and may not be accurate

référence: 2654

The municipality of Medulin is located in the very south of the Istrian Peninsula in the coastal area. Medulin, once a fishing village, is today a modern tourist center that has emerged as one of the most desirable tourist destinations in Croatia in the last ten years, as evidenced by the highest number of overnight stays in recent years.

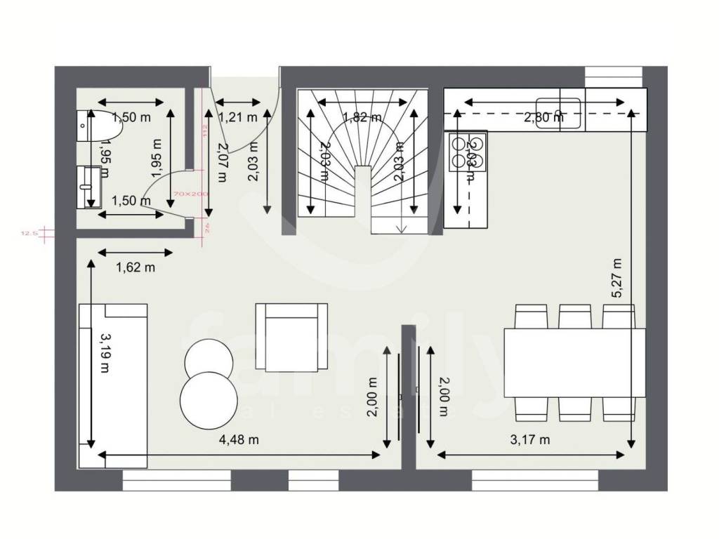
This extremely modern and high-quality small residential building from a proven investor with a total of 6 residential units will be located in one of the most attractive settlements within the Municipality of Medulin, in Premantura. The aforementioned apartment will be located on the ground floor of the building with a total area of 80 m2 and will spread over two floors. The ground floor of the aforementioned property will consist of a bright living room with access to the garden, which is planned to have an area of approximately 30 m2, a high-quality kitchen with a dining area, as well as a guest toilet and a storage room located under the stairs. An internal staircase will lead to the second floor, which will consist of two comfortable bedrooms and two bathrooms. The heating and cooling system is planned to be regulated by 3 air conditioning units, one in each bedroom and one unit is planned in the living room. Electric underfloor heating will also be installed in the kitchen, living room and bathroom. The apartment will be equipped with three-layer PVC joinery in anthracite color, lift-sliding doors, electric aluminum roller shutters and aluminum entrance doors. The floors will be covered with high-quality parquet and ceramics with the possibility of choosing according to your own preferences. The apartment will also have 2 parking spaces.

The aforementioned high-quality property represents a very interesting opportunity given its quality of construction, surface area and proximity to all accompanying facilities and therefore offers the future owner an excellent opportunity whether for family life or for tourist rental, which would certainly accelerate the return on investment.

FOR ALL OTHER INFORMATION, CALL:

+385 98 174 8680

dean.zunic@family-nekretnine.hr

Dean Zunic

Licensed agent
Caractéristiques
Typologie
Appartement
Transaction
Vente
Étage
Rez-de-chaussée
Étages du bâtiment
1
Superficie
80 m²
Chambres/pièces
2
Chambres
2
Bains/douches
3
Meublé
Non
Box, places stationnement
2 place(s) de parking
Climatisation
Froid/chaud
Informations sur les prix
Prix
€ 340 000
Prix au m²
4 250 €/m²
Efficacité énergétique
  • Année de construction

    2025
  • Climatisation

    Froid/chaud
  • Certification énergétique

    Exempt
Découvrez chaque recoin de la propriété
+20
Options additionnelles

Contacter l'annonceur

Ou