

Nota
This description has been translated automatically by Google Translate and may not be accurate
riferimento: 2716
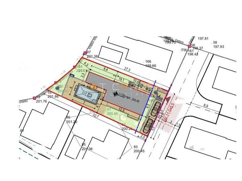
Casa Cukrići, Svetvinčenat, 200m2
Anno di costruzione
2023Climatizzatore
Autonomo, freddo/caldoCertificazione energetica
Non classificabile