Trilocale nuovo, primo piano, Donja Kustošija, Zagabria

€ 305.689
3
1
1
No

Nota

Annuncio aggiornato il 19/12/2025
Descrizione

This description has been translated automatically and may not be accurate

riferimento: RE725650

Zagabria, Rudeš – appartamento bilocale con loggia in un nuovo edificio

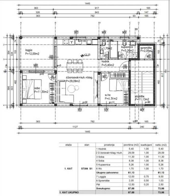
L'appartamento si trova al primo piano di un moderno edificio residenziale di quattro piani, in un tranquillo e curato quartiere residenziale familiare vicino alla Zagrebačka cesta. Con una superficie totale di circa 74 m², l'appartamento è composto da un ingresso, un ampio soggiorno con cucina e sala da pranzo, due camere da letto, un bagno, un WC separato e una loggia coperta di circa 12 m². L'appartamento comprende anche un ripostiglio e un posto auto esterno, ed è possibile acquistare un garage o un posto auto aggiuntivo. L'orientamento dell'appartamento è nord-sud-ovest, il che garantisce molta luce e un soggiorno confortevole durante tutto il giorno. L'edificio è costruito secondo i più alti standard di efficienza energetica e sicurezza antisismica, con particolare attenzione al comfort e a uno stile di vita moderno. La struttura è in cemento armato, con una facciata isolata con lana di roccia spessa 15 cm e un tetto piano con un eccellente isolamento idrotermico. Gli appartamenti sono dotati di riscaldamento a pavimento e pompe di calore, serramenti in PVC a triplo vetro con tapparelle in alluminio, parquet in rovere, ceramiche di prima classe e porte blindate e videocitofono. È collegato a un sistema antincendio automatico e le unità di climatizzazione sono discretamente posizionate sul tetto. Gli interni sono caratterizzati da un design accuratamente selezionato e da attrezzature di alta qualità: porte interne bianche con dettagli neri, bagni moderni con docce walk-in ed eleganti sanitari di produttori rinomati. La posizione è eccellente: a soli 100 metri dalla fermata dell'autobus e a pochi minuti dalla Zagrebačka avenija, City Center One, Z Center e tutte le principali catene di negozi. Nelle immediate vicinanze ci sono una scuola, un asilo, un parco, un ufficio postale, un centro sanitario e tutti i servizi necessari per la vita quotidiana. L'appartamento rappresenta la scelta ideale per la vita familiare o un investimento a lungo termine, con la possibilità di un arredamento flessibile secondo i desideri del futuro proprietario. Il progetto è in fase di costruzione e l'inaugurazione è prevista per la metà del 2026. Per maggiori informazioni, non esitate a contattarci.
Caratteristiche
Tipologia
Appartamento
Contratto
Vendita
Piano
1 piano
Piani edificio
3
Ascensore
No
Locali
3
Camere da letto
2
Bagni
1
Terrazzo
No
Box, posti auto
1 in box privato/box in garage, 1 posto auto
Riscaldamento
Centralizzato, a pavimento, alimentato a pompa di calore
Climatizzazione
Autonomo, freddo/caldo
Informazioni sul prezzo
Prezzo
€ 305.689
Efficienza energetica

Consumo di energia

A+

Planimetria
Scopri ogni angolo dell'immobile
+3
Opzioni aggiuntive

Contatta l'inserzionista

Oppure