Terreno edificabile in Vendita

€ 245.500
511 m²

Nota

Annuncio aggiornato il 22/01/2026
Descrizione

This description has been translated automatically and may not be accurate

riferimento: 1803

Medulin, Terreno edificabile con permesso e oneri comunali pagati – 100 m dal mare

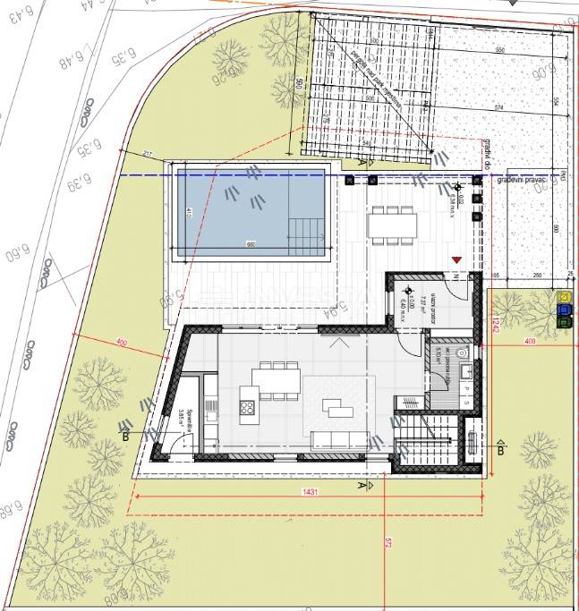
In vendita: Terreno edificabile di 511 m², di forma regolare, completamente sgomberato e pronto per la costruzione. Situato a Medolino, a soli 100 metri dal mare e dal porto turistico, in una zona tranquilla e attraente.

Il terreno dispone di allacciamenti per elettricità, acqua e fognatura, e i contributi comunali sono già stati pagati, il che semplifica e accelera notevolmente il processo di costruzione.

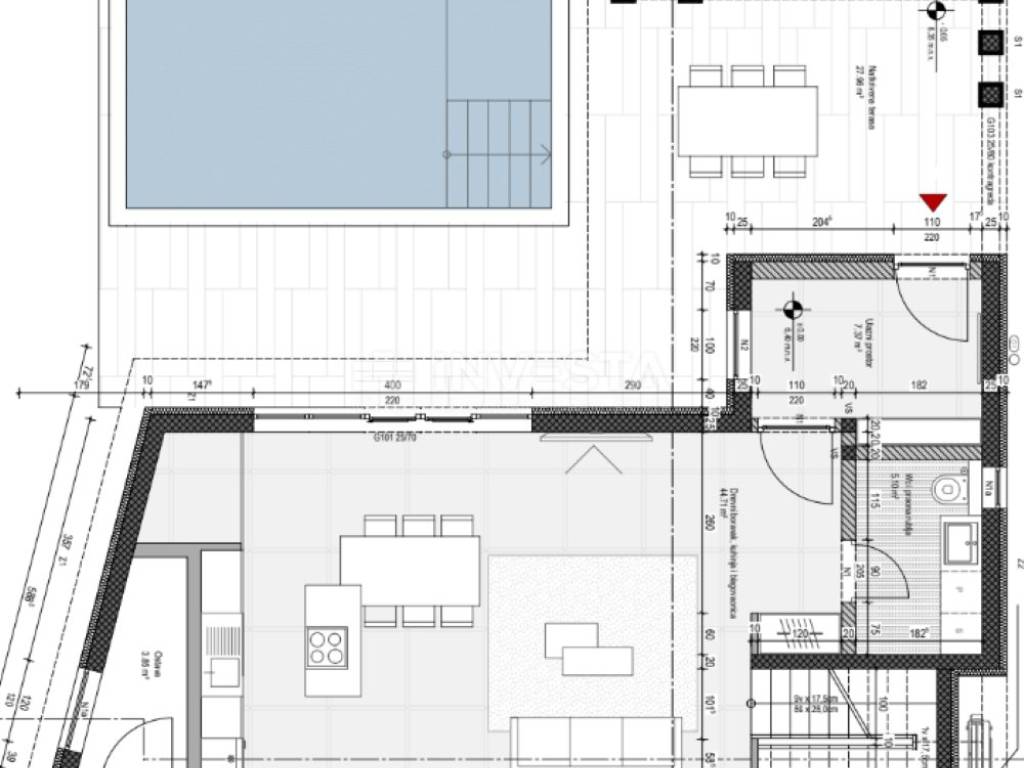
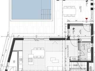
Incluso nel terreno è presente un progetto pronto per una villa moderna di 190 m², prevista su due piani. La villa comprenderà tre camere da letto, tre bagni, soggiorno con cucina e zona pranzo, terrazze coperte, piscina e parcheggio privato.

È possibile acquistare la casa al grezzo (roh bau) al prezzo di 586.000 €, con la possibilità di completamento chiavi in mano, previo accordo sul prezzo finale e sull'entità dei lavori.

Questo terreno rappresenta un'ottima opportunità grazie alla posizione eccellente, alle infrastrutture disponibili, alla documentazione progettuale già pronta e alla vicinanza al mare e al porto. Un ulteriore valore è dato dal fatto che anche il terreno adiacente è in vendita, offrendo la possibilità di unione o di sviluppo di un progetto più ampio.

Proprietà regolare (1/1), senza vincoli, e l’IVA è inclusa nel prezzo.

Per ulteriori informazioni o per fissare una visita, non esitate a contattarci!

ID CODE: 1803

Anais Naimarević Ramljak
Mob: +385 99 825 2485
Tel: +385 52 33 00 33
E-mail: anais@investa.hr
www.investa.hr
Caratteristiche
Contratto
Vendita
Tipologia
Terreno edificabile
Superficie
511 m²
Informazioni sul prezzo
Prezzo
€ 245.500
Prezzo al m²
480 €/m²
Scopri ogni angolo dell'immobile
+4
Opzioni aggiuntive

Contatta l'inserzionista

Oppure