Quadrilocale Srima, Vodice, Vodizze

€ 716.586
4
94 m²
2
3
No
Terrazzo

Nota

Annuncio aggiornato il 10/04/2026
Descrizione

This description has been translated automatically and may not be accurate

riferimento: 4

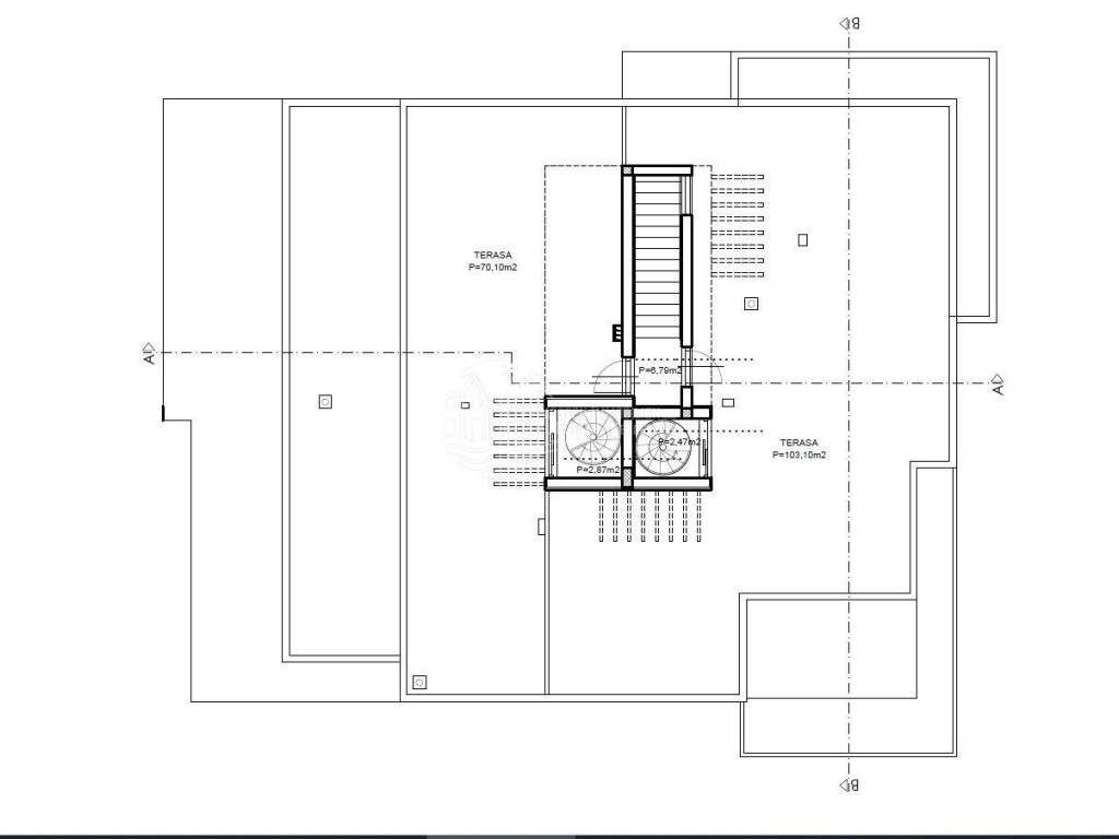
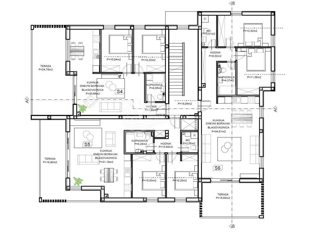
Comfortable and spacious apartment near Vodice, first row to the sea! The apartment is located in a great location and has a living area of ​​94 m². The brutto area is 183 m², which includes a large spacious sun terrace (49m²) for sunbathing on the roof of the building. The apartment consists of an entrance hall, living room, kitchen, dining room, three bedrooms, two bathrooms, one separate toilet and stairs leading to the roof terrace. The technical equipment includes anti-burglary doors, electric shutters, underfloor heating, air conditioning with heating and cooling. Thermal insulation includes styrofoam of 8 cm, bathrooms are equipped with quality sanitary ware, the bedrooms' floors are covered with 12 mm thick laminate. The price includes a parking space with the possibility of buying an additional parking space. Fantastic location as well as sea views make this property a great opportunity. The building has a total of eight residential units, and this apartment is located on the second floor of the building. It is currently under construction and the completion of works is expected by the end of winter 2023. For other questions feel free to contact us.

PRICE: 716.586,00 EUR

ID CODE: 4

Zoran Matković
Direktor
Mob: +385 95 383 6721
Tel: +385(0)22 571 863
E-mail: zoran@primosten-immobilien.com
www.primosten-immobilien.com
Caratteristiche
Tipologia
Appartamento
Contratto
Vendita
Piano
3 piano
Piani edificio
3
Ascensore
No
Superficie
94 m²
Locali
4
Camere da letto
3
Bagni
2
Balcone
No
Terrazzo
Riscaldamento
Autonomo, ad aria
Climatizzazione
Autonomo, freddo/caldo
Informazioni sul prezzo
Prezzo
€ 716.586
Prezzo al m²
7.623 €/m²
Efficienza energetica

Consumo di energia

A+

Scopri ogni angolo dell'immobile
+17
Opzioni aggiuntive

Contatta l'inserzionista

Oppure