1/7


Quadrilocale Dramalj, Crikvenica, Dramalj, Klanfari, Cirquenizza
€ 374.000
4
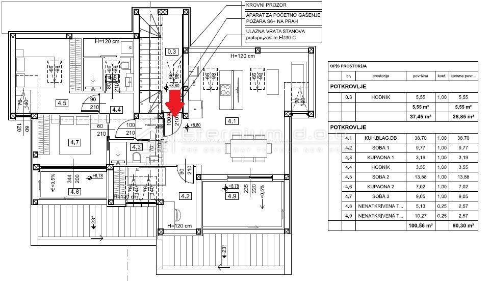
94 m²
2
2
No
Balcone
Terrazzo
Annuncio aggiornato il 22/01/2026
Descrizione
This description has been translated automatically by Google Translate and may not be accurate
riferimento: MS-76
ID CODE: MS-76
Mauro Slavić
Agent s licencom
Mob: +385 95 111 0 555
E-mail: mauro@eternium.hr
www.eternium.hr
Caratteristiche
- Tipologia
- Appartamento
- Contratto
- Vendita
- Piano
- 2 piano
- Piani edificio
- 4
- Ascensore
- No
- Superficie
- 94 m²
- Locali
- 4
- Camere da letto
- 3
- Bagni
- 2
- Balcone
- Sì
- Terrazzo
- Sì
- Box, posti auto
- 1 in parcheggio/garage comune
- Riscaldamento
- Autonomo, ad aria
- Climatizzazione
- Autonomo, freddo/caldo
Informazioni sul prezzo
- Prezzo
- € 374.000
- Prezzo al m²
- 3.979 €/m²
Efficienza energetica
Planimetria

Scopri ogni angolo dell'immobile
Opzioni aggiuntive