1/8


Trilocale Mandre, Kolan, Kolan
€ 290.000
Annuncio aggiornato il 23/03/2026
Descrizione
riferimento: 1084
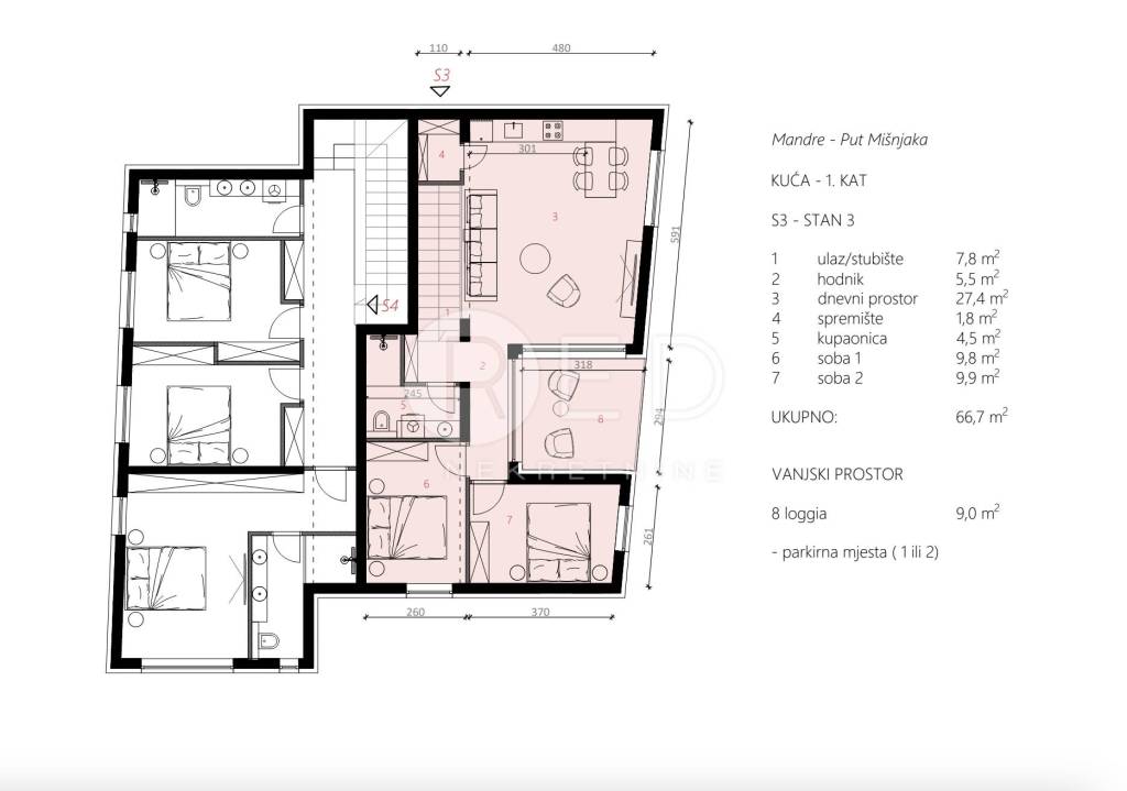
Appartamento Mandre, Kolan, 104,04m2
ID CODE: 1084
Mario Šarlija
Viši savjetnik
Mob: 0995068022
E-mail: mario@rednekretnine.com
www.rednekretnine.com
Lucija Obad
Asistent Agenta
Mob: 0911104077
E-mail: lucija@rednekretnine.com
www.rednekretnine.com
Caratteristiche
- Tipologia
- Appartamento
- Contratto
- Vendita
- Piano
- 1 piano
- Piani edificio
- 2
- Ascensore
- No
- Superficie
- 75 m²
- Locali
- 3
- Camere da letto
- 2
- Bagni
- 1
- Balcone
- No
- Terrazzo
- No
- Box, posti auto
- 1 posto auto
- Climatizzazione
- Autonomo, freddo/caldo
Informazioni sul prezzo
- Prezzo
- € 290.000
- Prezzo al m²
- 3.867 €/m²
Efficienza energetica
Scopri ogni angolo dell'immobile
Opzioni aggiuntive