Trilocale Šikići, Pula, Šikići - Busoler , Pola

€ 196.500
3
67 m²
1
2
No

Nota

Annuncio aggiornato il 28/04/2026
Descrizione

This description has been translated automatically and may not be accurate

riferimento: 10524

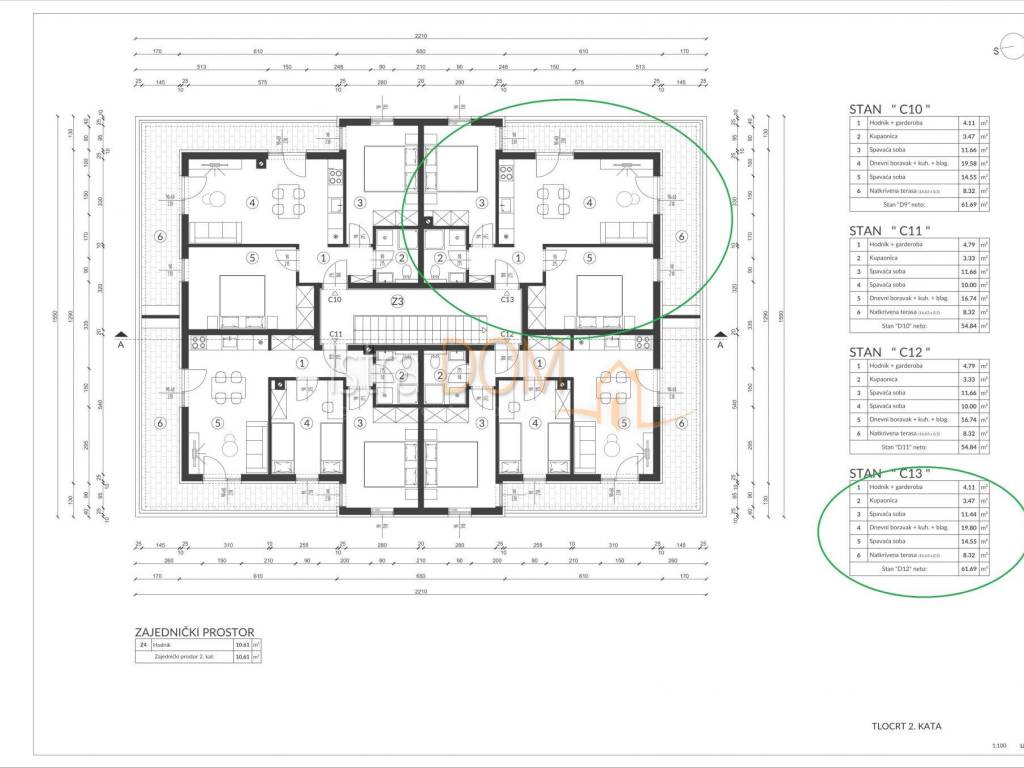
Appartamento Šikići, Pula, 58m2

NUOVO PROGETTO A ŠIKIĆI - COSTRUZIONE DI ALTA QUALITÀ

Vi presentiamo un nuovo progetto composto da quattro edifici moderni situati in una posizione privilegiata a Šikići. Questo progetto offre appartamenti moderni, ideali per le famiglie o per l'uso estivo.

Dettagli dell'appartamento: L'appartamento si trova al secondo piano e comprende:

Ingresso
Una camera da letto
Cucina con soggiorno
Bagno
Terrazza coperta
Posto auto
Posizione: l'appartamento si trova in un'ottima posizione, vicino a tutti i servizi importanti. La distanza dal mare e dalla spiaggia è di soli 3,5 km, mentre il centro di Pola dista 4 km.

Qualità della costruzione: Nella costruzione verranno utilizzati materiali di alta qualità:

Ceramiche di prima qualità con scelta di modelli e colori
Serramenti in PVC con zanzariere
Ottima falegnameria interna
Riscaldamento e raffreddamento: gli appartamenti saranno dotati di unità di aria condizionata posizionate in ogni stanza, compresi il soggiorno e le camere da letto.

Bagni: I bagni saranno completamente attrezzati, con sanitari e mobili di qualità e ceramiche installate.
Questo progetto rappresenta la combinazione perfetta tra comfort, qualità e posizione.

Per maggiori informazioni o per programmare una visita, non esitate a contattarci!

NESSUNA TASSA sulle transazioni immobiliari

Contatto: +385/99-444-5435
e-mail: istradom.sasan@gmail.com

ID CODE: 10524

Saša Nanovski
Agent s licencom
Mob: 099 444 5435
Tel: 0994445435
E-mail: istradom.sasan@gmail.com
www.istra-dom.com
Caratteristiche
Tipologia
Appartamento
Contratto
Vendita
Piano
2 piano
Piani edificio
2
Ascensore
No
Superficie
67 m²
Locali
3
Camere da letto
2
Bagni
1
Balcone
No
Terrazzo
No
Box, posti auto
2 posto auto
Climatizzazione
Autonomo, freddo/caldo
Altre caratteristiche
  • Porta blindata
Informazioni sul prezzo
Prezzo
€ 196.500
Prezzo al m²
2.933 €/m²
Efficienza energetica

Consumo di energia

A+

Scopri ogni angolo dell'immobile
+8
Opzioni aggiuntive

Contatta l'inserzionista

Oppure