Bilocale Pula, Centar, Pola

€ 189.250
2
64 m²
1
T
No

Nota

Annuncio aggiornato il 19/03/2026
Descrizione

This description has been translated automatically and may not be accurate

riferimento: 1046-299

Appartamento con due camere da letto in un nuovo edificio - posizione tranquilla vicino a Pola

Pola, Istria

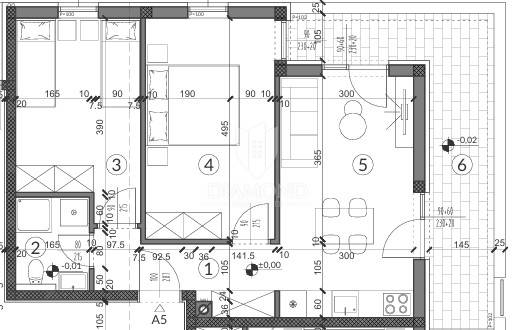
Situato in un nuovo e moderno edificio con un totale di 15 appartamenti, questo appartamento offre la perfetta combinazione di privacy e comfort. Circondato da un ambiente tranquillo, ma vicino a tutti i servizi principali, è il luogo ideale per vivere o investire.

L'appartamento è progettato in modo pratico e funzionale, con un ampio ingresso e guardaroba, due camere da letto e un soggiorno collegato alla cucina e alla sala da pranzo. Una terrazza coperta permette di godersi l'aria aperta in qualsiasi momento della giornata e l'appartamento dispone anche di due posti auto per il massimo comfort.

Non lasciarti sfuggire l'occasione! Contattaci oggi stesso e assicurati la tua nuova casa, ideale per una famiglia o come investimento sicuro.

ID CODE: 1046-299
Caratteristiche
Tipologia
Appartamento
Contratto
Vendita
Piano
Piano terra
Piani edificio
2
Ascensore
No
Superficie
64 m²
Locali
2
Camere da letto
2
Bagni
1
Balcone
No
Terrazzo
No
Informazioni sul prezzo
Prezzo
€ 189.250
Prezzo al m²
2.957 €/m²
Efficienza energetica

Consumo di energia

A

Scopri ogni angolo dell'immobile
+3
Opzioni aggiuntive

Contatta l'inserzionista

Oppure