Bilocale Kustošija, Rudeš - Ljubljanica, Zagabria

€ 305.689
2
73 m²
1

Nota

Annuncio aggiornato il 03/03/2026
Descrizione

riferimento: EUROVILLA-903637

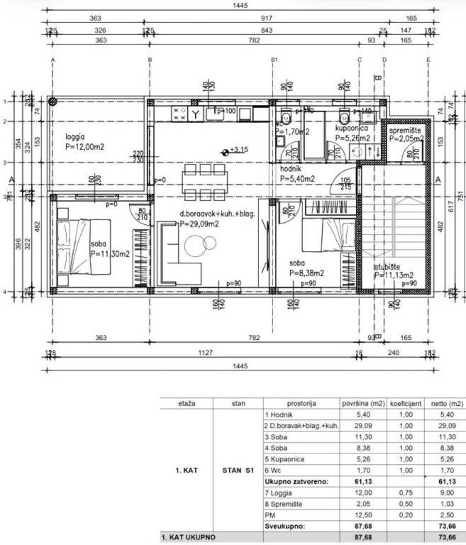
Zagrebačka cesta, trosoban stan zatvorne površine 61,13 m2 na prvom katu zgrade u izgradnji.Useljene kraj 2026. godine.Sastoji se od ulaznog hodnika, dnevnog boravka s kuhinjom i blagovaonicom, dvije spavaće sobe, kupaonice, zasebnog toaleta i lođe.Stanu pripada vanjsko parkirno mjesto 12,5 m2 te je moguće kupiti dodatno garažu.Karakteristike:armiranobetonski zidovi debljine 20 cmfasadna izolacija debljine 15 cmpodno grijanje, dizalice toplinevrhunska troslojna PVC stolarija s aluminijskim roletama u antracit bojiprotuprovalna ulazna vratakvalitetan hrastov parket, bijele rubne lajsnekeramičke pločice prve klase i sanitarije od renomiranih proizvođačaklima uređaj s vanjskim jedinicama na krovuautomatski dojavni protupožarni sustav na stubištuvideo portafonOdlična lokacija, nalazi se u uvučenoj ulici i u neposrednoj blizini svih potrebnih sadržaja (škola, vrtić, trgovina, restorani, barovi, sport…) na odlično prometno povezanoj lokaciji.Za dodatne informacije stojimo Vam na raspolaganju.... Više na eurovilla.hr, ID: 903637
Se vuoi saperne di più, puoi parlare con Dominik Jeftić.
Caratteristiche
Tipologia
Appartamento
Contratto
Vendita
Piano
1
Superficie
73 m²
Locali
2
Camere da letto
2
Dettaglio superficie

Abitazione

Piano
1
Superficie
73,7 m²
Coefficiente
100%
Tipo superficie
Principale
Sup. commerciale
73,7 m²
Informazioni sul prezzo
Prezzo
€ 305.689
Prezzo al m²
4.188 €/m²
Efficienza energetica
  • Stato

    Nuovo / In costruzione
  • Certificazione energetica

    Esente
Planimetria
Inserzionista
scheda agenzia
Opzioni aggiuntive

Contatta l'inserzionista

Oppure