Terreno edificabile in Vendita

€ 310.000
815 m²

Nota

Annuncio aggiornato il 10/04/2026
Descrizione

riferimento: 45995

OTOK RAB, BANJOL - TOP INVESTICIJA - Građevinsko zemljište spremno za gradnju, s pogledom na more i staru jezgru!

Prodaje se ekskluzivno građevinsko zemljište ukupne površine 815 m2, na jednoj od najtraženijih i najatraktivnijih lokacija na otoku Rabu. Ovo zemljište predstavlja idealnu priliku za investitore jer se prodaje s pravomoćnom građevinskom dozvolom i plaćenim komunalnim doprinosima. Doslovno možete sutra otvoriti gradilište!

OSNOVNE INFORMACIJE:
Lokacija: Banjol, otok Rab
Površina zemljišta: 815 m2
Infrastruktura: Voda i struja na terenu, direktan pristup s asfaltirane prometnice.

DETALJI PROJEKTA:
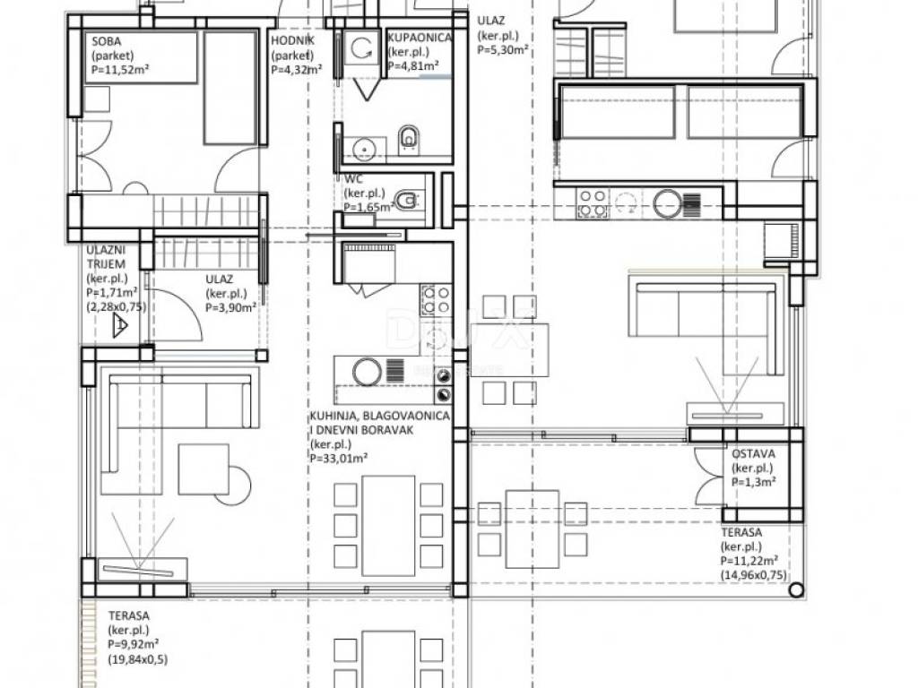
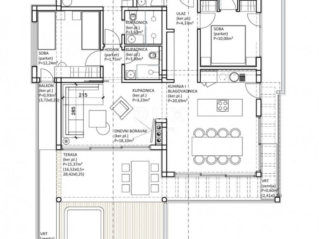
Projekt je projektiran kako bi se iskoristio potencijal terena i zadovoljila velika potražnja za apartmanima na Rabu. Dozvola obuhvaća izgradnju modernog objekta s 3 prostrane stambene jedinice - 2 stana u prizemlju s pripadajućom okućnicom i 1 komforan stan na katu - penthouse s fantastičnim pogledom.

SAVRŠENA INVESTICIJA?
Zemljište nudi spektakularan, otvoren pogled na more i prepoznatljivu staru jezgru grada Raba s njena četiri zvonika, a istovremeno se nalazi blizu svih bitnih sadržaja i predivnih pješčanih plaža.

Budući da je sva dokumentacija već riješena, novi vlasnik preskače dugotrajan i iscrpljujući proces ishodovanja dozvola.
Zemljišta s ovakvim pogledom, na ovoj mikrolokaciji i s ovakvim statusom rijetko se nalaze na tržištu.
Vlasništvo: 1/1, bez tereta, u sustavu PDV-a.

***
Poštovani klijenti, agencijska provizija naplaćuje se u skladu s Općim uvjetima poslovanja
www.dux-nekretnine.hr/opci-uvjeti-poslovanja

ID KOD AGENCIJE: 45995

Iva Mršić
Agent s licencom
Mob: +385 91 575 9388
Tel: +385 91 480 8808
E-mail: iva@dux-nekretnine.hr
www.dux-krk.com
Se vuoi saperne di più, puoi parlare con Iva Mršić.
Caratteristiche
Contratto
Vendita
Tipologia
Terreno edificabile
Superficie
815 m²
Informazioni sul prezzo
Prezzo
€ 310.000
Prezzo al m²
380 €/m²
Scopri ogni angolo dell'immobile
+3
Opzioni aggiuntive

Contatta l'inserzionista

Oppure