Terreno edificabile in Vendita

€ 214.000
511 m²

Nota

Annuncio aggiornato il 12/05/2026
Descrizione

riferimento: L577

Građevinsko zemljište 511 m 770 m od mora

Na prodaju je zemljište površine 511 m², smješteno u Zadru, predio Belafuža, 770 m od mora i 1,5 km od centra mjesta.

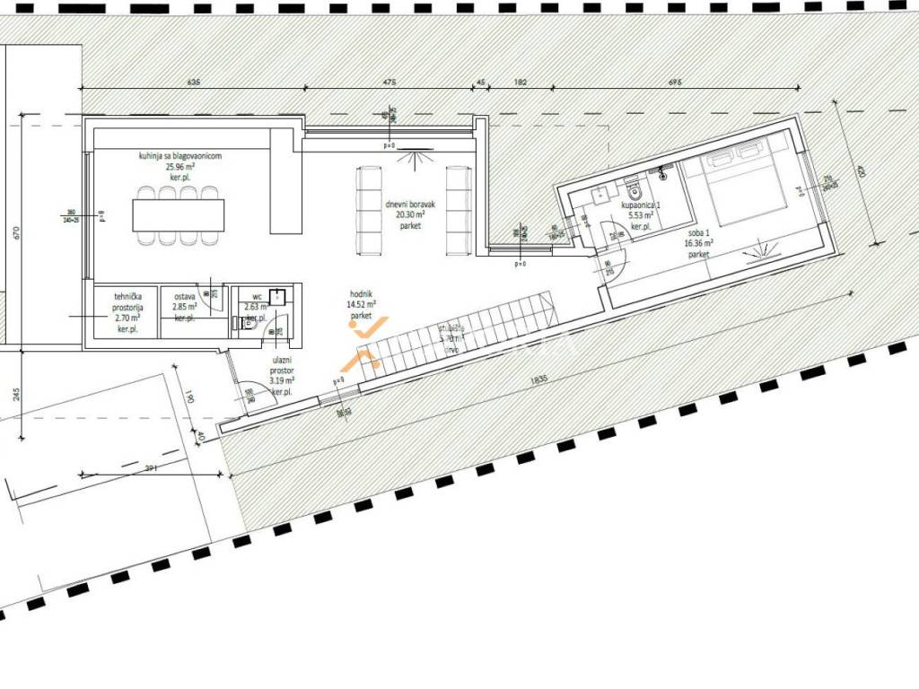
Za zemljište postoji glavni projekt za kuću na dva kata s dva bazena – jedan u prizemlju i jedan na terasi na drugom katu, s 4 spavaće sobe s kupaonicama.

Širina zemljišta iznosi oko 9 – 19 m, dok je dužina oko 40 m.

Struja i voda nalaze se uz zemljište, dok je priključak na kanalizaciju moguć.
 
 
 


Lokacija nekretnine

Belafuža je predio grada pogodan za obiteljski život, mlade ljude, ali i vrlo tražena lokacija i od strane stranih gostiju i turista. Nalazi se svega 15-ak minuta šetnje od centra grada, a povezana je autobusnim linijama. Iako se nalaze relativno blizu centru, dovoljno su odvojeni da pružaju mir i ugodan život. U blizini se nalazi sve što je potrebno za ugodnu svakodnevicu: škola, vrtići, pošta, ugostiteljski objekti, banke i trgovine.


Ostale informacije

Ukoliko ste ovu nekretninu vidjeli negdje drugdje po nižoj cijeni, ista cijena vrijedi i kod nas!


https://www.emporia-nekretnine.com/property/gradevinsko-zemljiste-l577-zadar-belafuza/
Caratteristiche
Contratto
Vendita
Tipologia
Terreno edificabile
Superficie
511 m²
Informazioni sul prezzo
Prezzo
€ 214.000
Prezzo al m²
419 €/m²
Scopri ogni angolo dell'immobile
+7
Opzioni aggiuntive

Contatta l'inserzionista

Oppure