Trilocale Vendita, Dobrinj

€ 209.000
3

Nota

Annuncio aggiornato il 05/03/2026
Descrizione

This description has been translated automatically and may not be accurate

riferimento: EK-679003

A new residential development Krk Panorama is soon to begin construction on the island of Krk, featuring a total of 18 apartments across 6 buildings. Each apartment is thoughtfully designed to ensure maximum comfort and luxury, with a strong emphasis on high-quality materials and top-level finishing. The proximity to the sea adds to the project's value, and beautiful terraces further enhance the idyllic living experience. Construction is planned to begin in early 2026, with intensive works continuing throughout 2026, and the planned move-in scheduled for the end of 2027. For more information, visit: www.pgmg-nekretnine.hr

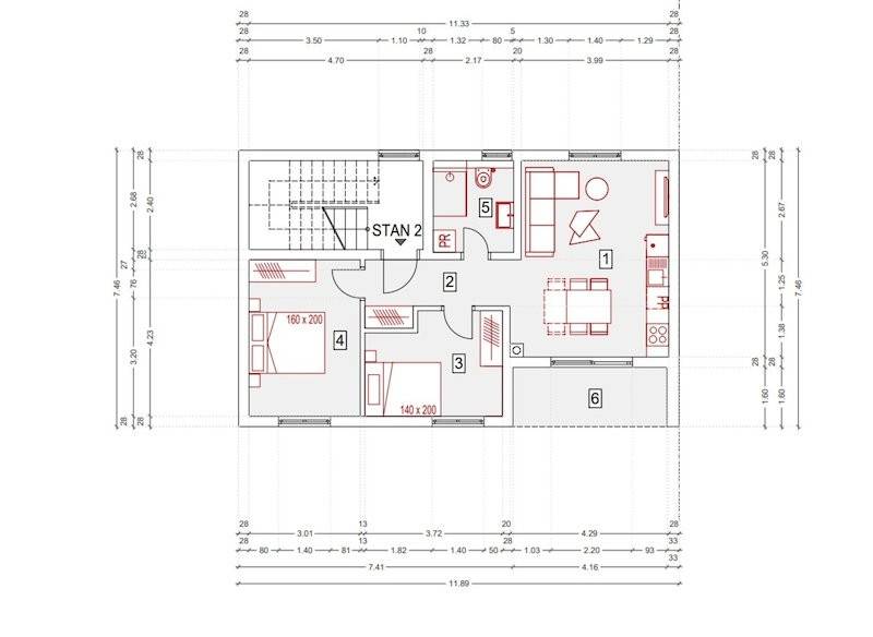
For sale: a modern apartment on the first floor of a new urban villa! The apartment features a spacious living room with kitchen and dining area, two bedrooms, a bathroom, and a terrace. The price includes one parking space in the courtyard of the building. Each unit has electric underfloor heating in the bathroom, while the living room and master bedroom will be equipped with inverter air-conditioning units. The apartment is very sunny and designed for optimal functionality and comfortable living.

Apartment includes:


Italian tiles

PVC profiles with sound and thermal insulation

Elegant balcony railing made of tempered glass

Electric underfloor heating in the bathroom

Inverter air-conditioning

Security entrance door

Enhanced sound insulation between buildings and floors

EV charging point ready at the private parking space

Key advantages of the building:


High-quality construction and fittings

Abundant green spaces

400 m from the city beach

500 m from the city center

Gated parking area

The exclusive sales of apartments in the Panorama Krk project are managed by our partner agency Premium nekretnine from Pula (www.premiumnekretnine.hr). The seller requires the buyer to cover 3% of the agreed sale price + VAT as part of the transaction costs.

A non-binding reservation is currently possible. The building permit application has already been submitted. Buyers who make a reservation will have priority when signing the sales contract.

If you are interested in purchasing, call or send a message to:

Matea Blažević, mobile number +385 99 529 85 41 (Whatsapp and Viber) or email matea@premiumnekretnine.hr
Caratteristiche
Tipologia
Appartamento
Contratto
Vendita
Locali
3
Camere da letto
2
Informazioni sul prezzo
Prezzo
€ 209.000
Efficienza energetica
  • Certificazione energetica

    Esente
Scopri ogni angolo dell'immobile
+5
Opzioni aggiuntive

Contatta l'inserzionista

Oppure