Bilocale Vendita, Dobrinj

€ 184.000
2

Nota

Annuncio aggiornato il 05/03/2026
Descrizione

This description has been translated automatically and may not be accurate

riferimento: EK-679017

A new residential complex – Krk Panorama – is soon to be built on the island of Krk, offering 18 apartments distributed across 6 buildings. Each apartment is carefully designed to provide maximum comfort and luxury, with a strong emphasis on material quality and finish. The proximity to the sea adds value to the project, and the beautiful terraces contribute to the idyllic living environment. Construction is planned to begin in early 2026, with intensive works continuing throughout 2026, and the planned move-in scheduled for the end of 2027. More information: www.pgmg-nekretnine.hr

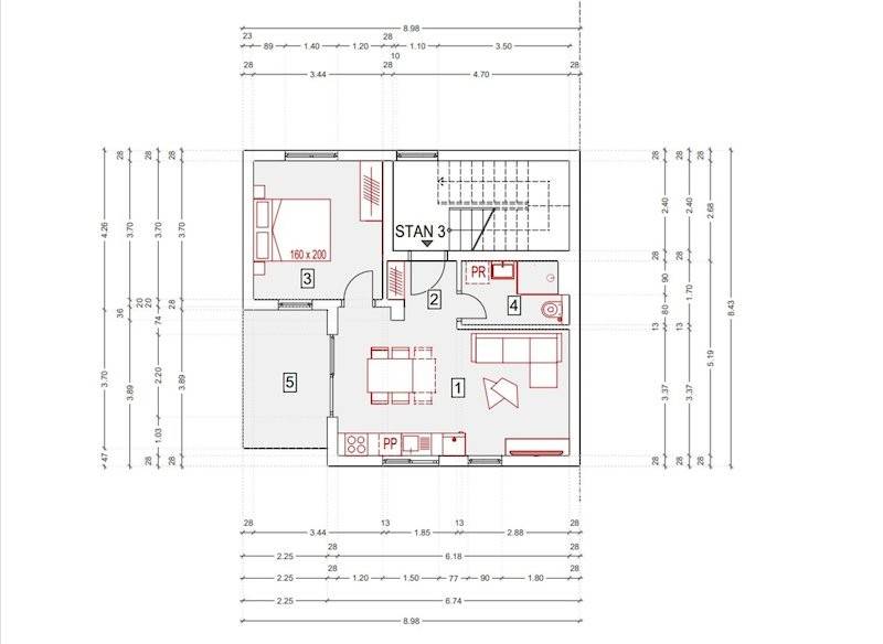
For sale: a modern penthouse located on the second floor of a new urban villa! The apartment consists of a spacious living room with kitchen and dining area, one bedroom, one bathroom, and a terrace. The price includes one parking space in the building's courtyard. Each unit will feature electric underfloor heating in the bathroom, and inverter air-conditioning units in the living room and master bedroom. The apartment is very sunny and designed for maximum functionality and comfort.

The apartment includes:


Italian tiles

PVC profiles with sound and thermal insulation

Elegant balcony railing made of tempered glass

Electric underfloor heating in the bathroom

Inverter air-conditioning

Security entrance door

Enhanced sound insulation between buildings and floors

EV charger connection at the private parking space

Key features of the building:


High-quality construction and fittings

Plenty of green areas

400 m to the city beach

500 m to the town center

Gated parking area

The exclusive sale of apartments in the Panorama Krk project is managed by our partner agency Premium nekretnine from Pula (www.premiumnekretnine.hr).

Seller's condition: buyer covers 3% of the agreed purchase price + VAT.

A non-binding reservation is currently possible.

The application for a building permit has already been submitted.

Buyers who make a reservation will have priority when signing the sales agreement.

If you are interested in purchasing, call or send a message to:

Matea Blažević, mobile number +385 99 529 85 41 (Whatsapp and Viber) or email matea@premiumnekretnine.hr
Caratteristiche
Tipologia
Appartamento
Contratto
Vendita
Locali
2
Camere da letto
1
Informazioni sul prezzo
Prezzo
€ 184.000
Efficienza energetica
  • Certificazione energetica

    Esente
Scopri ogni angolo dell'immobile
+5
Opzioni aggiuntive

Contatta l'inserzionista

Oppure