Appartamento nuovo, piano terra, Traù

€ 290.000
5+
110 m²
2
T
Terrazzo

Nota

Annuncio aggiornato il 04/05/2026
Descrizione

This description has been translated automatically and may not be accurate

riferimento: 5170-1


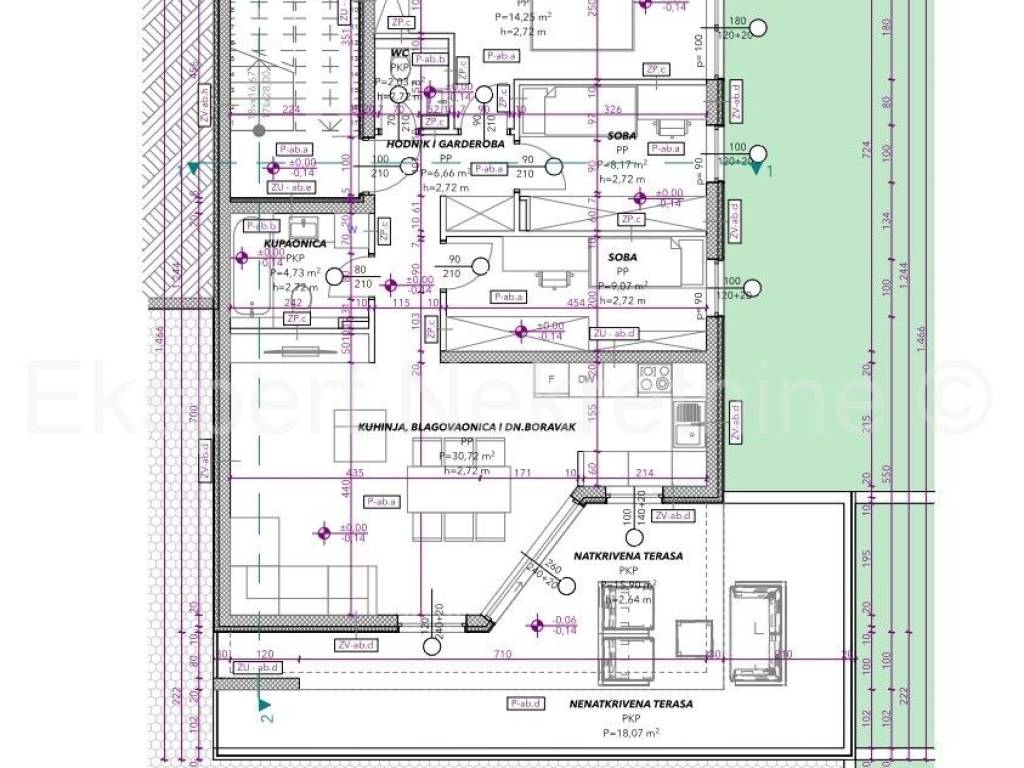
Trogir, Čiovo, Saldun, three-room apartment 110 m2 (76 m2 plus 34 m2 terrace) + garden (50 m2) in a new building in a smaller residential building with only 4 apartments. The apartment is located on the ground floor of the building, and consists of three bedrooms, bathroom, toilet, hallway, kitchen with dining room and living room, and a large terrace (34 m2) and garden (50 m2). The apartment is oriented east-south. The apartment has 1 parking space. The building is located in an excellent and quiet location, only 400 mfrom the sea, the beach and 1000 m from the old town center of Trogir. The start of the works is planned for 09/2023 and the completion is planned for the end of 2024.Quality equipment (inverter air conditioner, PVC carpentry, quality ceramics, underfloor heating, mosquito nets, electric blinds, security doors, etc.)Payment by stages of construction. Valid building permit. Reservations are accepted at this stage. For more information, contact the agency.
.
Caratteristiche
Tipologia
Appartamento
Contratto
Vendita
Piano
Piano terra
Superficie
110 m²
Locali
5+
Camere da letto
3
Bagni
2
Terrazzo
Climatizzazione
Centralizzato, freddo/caldo
Altre caratteristiche
  • Porta blindata
  • Impianto tv con parabola satellitare
Informazioni sul prezzo
Prezzo
€ 290.000
Prezzo al m²
2.636 €/m²
Efficienza energetica
  • Stato

    Nuovo / In costruzione
  • Climatizzatore

    Centralizzato, freddo/caldo
  • Certificazione energetica

    Non classificabile
Scopri ogni angolo dell'immobile
+22
Opzioni aggiuntive

Contatta l'inserzionista

Oppure