map icon

Terratetto unifamiliare 95 m², nuova, Velika Gorica

Velika Gorica
€ 240.000
3
95 m²
1

Nota

Annuncio aggiornato il 08/02/2026
Descrizione

This description has been translated automatically and may not be accurate

riferimento: 14869-1

www.biliskov.com ID 14869Velika GoricaFor sale is this quality single-story house with a net area of 95 m, located in a quiet and attractive area, ideal for family living.The house features a functional layout and offers high comfort with energy-efficient construction.
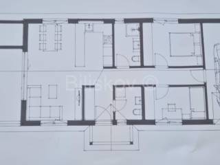
House layout

Entrance hall
Internal storage
Two bedrooms
Kitchen with dining area
Living room with access to the terrace
Bathroom
Storage room with an entrance from the yard

Specifications and quality of construction:

Fitted joinery with triple-glazed windows, shutters, and insect screens for excellent sound and thermal insulation
Interior height of 266 cm, above standard, ensuring airiness and comfort
Heat pumps (underfloor heating) for low energy consumption and year-round comfort
Water softener
Air conditioning for cooling

Additional information:

Yard area: 740 m
Planned energy rating: A, indicating high energy efficiency
Close to public and school transportation stations

This property is the perfect choice for a family seeking an energy-efficient, modern home in a peaceful environment with excellent access to public amenities.
Planned move-in date: April 2025Price: 240,000For more information or to arrange a viewing, feel free to contact us!Agency fee: 2% plus VAT
Se vuoi saperne di più, puoi parlare con Vedran Petrović.
Caratteristiche
Tipologia
Terratetto unifamiliare
Contratto
Vendita
Piano
Piano terra
Superficie
95 m²
Locali
3
Bagni
1
Riscaldamento
Centralizzato, a pavimento
Climatizzazione
Centralizzato, freddo/caldo
Informazioni sul prezzo
Prezzo
€ 240.000
Prezzo al m²
2.526 €/m²
Efficienza energetica
  • Anno di costruzione

    2024
  • Stato

    Nuovo / In costruzione
  • Riscaldamento

    Centralizzato, a pavimento
  • Climatizzatore

    Centralizzato, freddo/caldo
Scopri ogni angolo dell'immobile
+17
Opzioni aggiuntive

Contatta l'inserzionista

Oppure