Trilocale nuovo, su più livelli, Ciglenica, Zagabria

€ 380.000
3
78 m²
1

Nota

Annuncio aggiornato il 12/12/2025
Descrizione

riferimento: 68

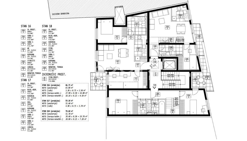
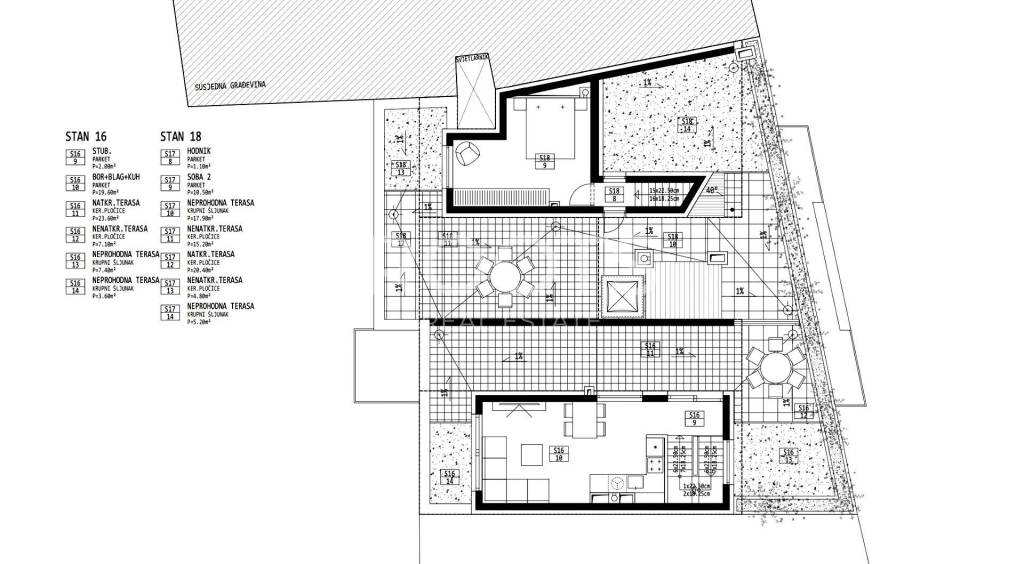
Zagreb, Selska cesta, trosoban dvoetažan penthouse u modernoj novogradnji sa 17 stanova.
 
Zatvorena površina stana iznosi 52 m2, sa dvije spavaće sobe , kupaonicom, dnevnim dijelom i velikom djelomično natkrivenom terasom cca 65 m2. Ukupne NKP površine 78,5 m2. Prekrasan pogled na grad i zelenilo.
 
Armiranobetonska novogradnja sa liftom kroz sve etaže, termo-izo fasada, dizalice topline, pvc stolarija, elektrorolete.
 
Stan je u sustavu PDV-a, dvoetažan na 6. i 7. katu, uz njega ide spremište i vanjsko parking mjesto, sve zajedno u doplati 38.000 EUR-a.
 
Javni prijevoz, park, centar grada u neposrednoj blizini.
 
Ostale informacije na upit.
 
Caratteristiche
Tipologia
Appartamento
Contratto
Vendita
Piano
Su più livelli
Piani edificio
7
Ascensore
Superficie
78 m²
Locali
3
Camere da letto
2
Bagni
1
Riscaldamento
Autonomo, ad aria, alimentato a pompa di calore
Vista
Panoramica
Altre caratteristiche
  • Infissi esterni in vetro / PVC
  • Porta blindata
  • VideoCitofono
Informazioni sul prezzo
Prezzo
€ 380.000
Prezzo al m²
4.872 €/m²
Dettaglio dei costi
Spese condominio
Nessuna spesa condominiale
Efficienza energetica
  • Anno di costruzione

    2026
  • Stato

    Nuovo / In costruzione
  • Riscaldamento

    Autonomo, ad aria, alimentato a pompa di calore
  • Certificazione energetica

    Non classificabile
Planimetria
Zagreb, Tresnjevka - sjever
Zagreb, Tresnjevka - sjever
Opzioni aggiuntive

Contatta l'inserzionista

Oppure