

Nota
This description has been translated automatically by Google Translate and may not be accurate
riferimento: 300391024-331
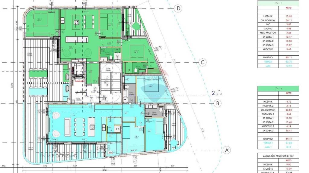
Appartamento Umag, 99,11m2
Anno di costruzione
2024Climatizzatore
Autonomo, freddo/caldoCertificazione energetica
Non classificabile