Stan Centar, Varaždin, Varaždin

€ 425.000
5
172 m²
2
1
Ne
Terasa

Bilješka

Oglas ažuriran 09. 02. 2026.
Opis

referenca: s517

BAROKNA JEZGRA, PENTHOUSE U NOVOGRADNJI, 2.471€/m2

Vrhunska novogradnja, dvoetažni penthouse u urbanoj vili sa 4 stana u samom središtu grada.
Izuzetna lokacija, neposredna blizina glavnog gradskog trga, tržnice i ostalih sadržaja.
Stan sa ukupnom korisnom površinom površine 232,91 m2, neto površine 172,92 m2.
Prekrasna vanjska terasa 44,52 m2 i dva natkrivena parkirna mjesta.
Energetski razred A+.
Podno grijanje (kombinacija solarno i plinsko) sa ugrađenim rekuperatorima, svaka prostorija sa vlastitim termostatom, hrastov parket,
unutarnja stolarija hrast masiv, vanjska termofasada 20 cm grafitni stiropor, vanjska stolarija sa pročelja drvena sa trostrukim izo staklima, a sa dvorišne strane alu sa trostrukim izo staklima, komarnici, rolete aluminijske na daljinsko upravljanje, klimatizacija.
Na vanjskoj terasi pripremljene instalacije za vanjsku kuhinju.
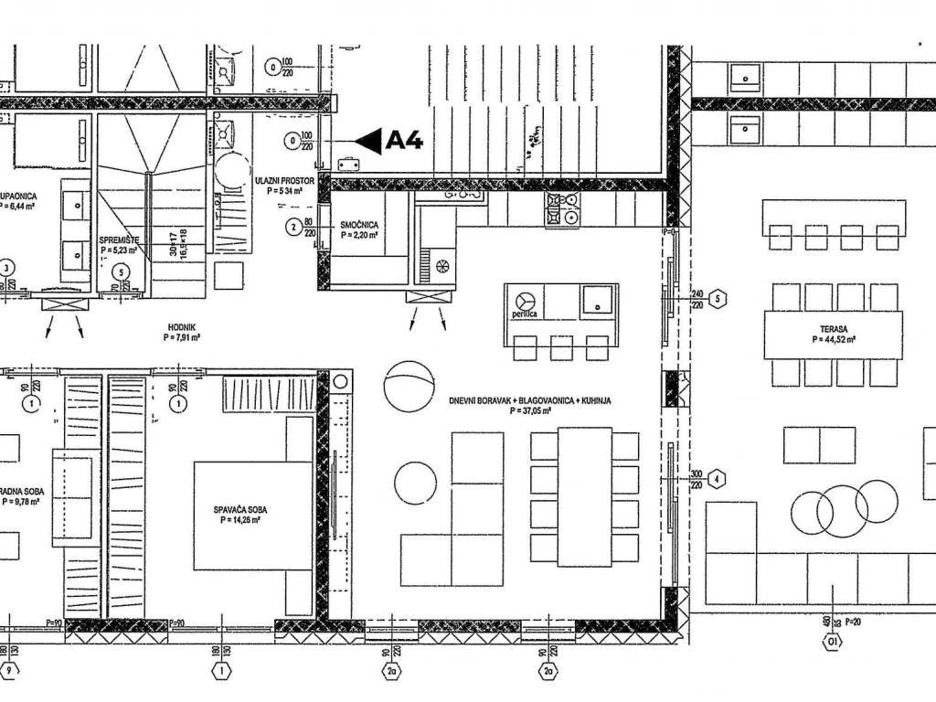
ETAŽA I:
- ulazni hodnik 5,34 m2
- kuhinja sa blagovaonicom i dnevnim boravkom 37,05 m2
- soba I 9,78 m2
- soba II 14,26 m2
- ostava  2,20 m2
- kupaonica sa WC-om 6,44 m2
- vanjska terasa 44,52 m2 (x 0,25=11,13 m2)
- spremište 5,23 (x 0,35=1,83m2)
- spremište u prizemlju zgrade 8 m2 (x 0,35=2,80m2)
ETAŽA II:
- soba III 12,06 m2
- soba IV 12,06 ,2
- kupaonica sa WC-om 5,25 m2
- vešeraj 6,80 m2
- stubište 5,26 m2
- hodnik 5,48 m2
- dva parkirna mjesta 45 m2 (x 0,60=27 m2)

ID CODE: s517

Nekretnine Croatia
Mob: +385 91 300 05 70
Tel: +385 42 500 100
E-mail: info@nc.hr
www.nekretninecroatia.hr
Značajke
Vrsta
Stan
Ugovor
Prodaja
Kat
1 kat
Katovi zgrade
1
Dizalo
Ne
Površina
172 m²
Prostorije
5
Spavaće sobe
5
Kupaonice
2
Balkon
Ne
Terasa
Da
Garažno mjesto, parkirna mjesta
2 na zajedničkom parkingu
Grijanje
Samostalno, zrak
Klimatizacija
Samostalno, hlađenje/grijanje
Ostale karakteristike
  • Protuprovalna vrata
Informacije o cijeni
Cijena
€ 425.000
Cijena po m²
2.471 €/m²
Energetska učinkovitost

Potrošnja energije

A+

Otkrijte svaki kutak nekretnine
+22
Dodatne mogućnosti

Obratite se oglašivaču

Ili