Trosobni stan Centar, Varaždin, Varaždin

€ 235.410
3
78 m²
1
PR
Ne

Bilješka

Oglas ažuriran 27. 01. 2026.
Opis

referenca: 153

STAN, PRIZEMLJE S VLASTITIM DVORIŠTEM/ VRTOM; PRETPRODAJA!

PRETPRODAJA: nekretnina u fazi gradnje; završetak radova 07/2027. godine!
PREDNOSTI KUPNJE OVE NEKRETNINE:
• CIJENA: 3.200 €/m2, UZ POPUST DALJNJIH 200,00 €/m2 ZA AVANSIRANJE U CIJELOSTI + TROSTRUKO JAMSTVO KAO OSIGURANJE: ZADUŽNICA, JAMAC PLATAC I UPIS ZALOŽNOG PRAVA NA NEKRETNINU!
• STAN JE U SUSTAVU PDV-a: KUPAC NE PLAĆA POREZ NA PROMET NEKRETNINA (3%)!
• BEZ PROVIZIJE ZA KUPCA!
• BEZ TROŠKOVA ZA PREGLED NEKRETNINE!
• KONAČNU CIJENU KUPAC UGOVARA ISKLJUČIVO SA PRODAVATELJEM!
• STANOVI U PRIZEMLJU DOBIVAJU I ZEMLJIŠTE (koje je ograđeno visokom, punom ogradom i posađena trava, odnosno po dogovoru)!
• MOGUĆNOST KUPNJE VIŠE PARKIRNIH MJESTA POVRŠINE 12,5 m2

VRHUNSKI stan sa izlazom u vlastito dvorište/vrt, u prizemlju stambene zgrade, odlično osmišljenog rasporeda, sa komfornim open space prostorom sa kuhinjom, blagovaonicom i dnevnim boravkom; stan ima 2 spavaće sobe.
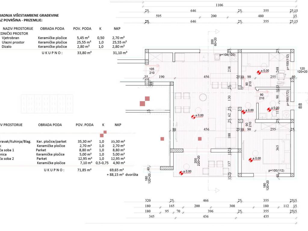
Ukupna stvarna površina stana iznosi 71.85 m2, neto korisna površina (NKP) iznosi 69.65 m2 + pripadajuće dvorište/ vrt površine 88.15 m2!
Opremljenost po principu „ključ u ruke“, koja uključuje:
- toplinska fasadna ovojnica u debljini 15 cm (veći dio ETICS toplinsko-fasadni sustav)
- eventualna promjena rasporeda po želji kupca/prema dogovoru sa investitorom
- zajedničko stubište i hodnici izolirani prema stanovima vunom od 5 cm, zajedničko stubište sa završnom podnom oblogom od keramičkih pločica
- plinsko etažno podno grijanje
- zasebno brojila za vodu i struju (zasebna za svaku stambenu jedinicu)
- po cijeloj stambenoj jedinici, završna obloga podova keramikom ili seljačkim podom po želji investitora u željenom omjeru (izbor keramike i seljačkog poda u dva dekora (3-slojni seljački pod - hrast nature ili tamnosmeđi, prema želji investitora)
- zidovi žbukani finom žbukom, kupaonica obložena keramikom do stropa, podovi balkona - keramika
- PVC stolarija antracit sive boje, iznutra i izvana 3-slojno ostakljenje
- rolete unutarnje, antracit sive boje
- led rasvjeta unutar stana, utičnice i štekeri, led vanjska rasvjeta na zajedničkim prostorijama, klima uređaj marke Samsung od 3,5 kW
- unutarnja drvena stolarija u boji s kvakama (po izboru boja vrata i kvake)
- unutarnje prozorske klupčice od granita (crna boja ili boja granita po želji kupca)
- vanjske limene klupčice u antracit sivoj boji
- klupčice od granita na balkonima u tamnoj boji
- video portafon
- protuprovalna i protupožarna vrata
- poštanski sandučić na ulazu, po želji kupca
- priprema za video nadzor
POVRŠINE:
• dnevni boravak/kuhinja/blagovaonica, 35.30 m²
• hodnik, 2.70 m²
• spavaća soba I, 8.80 m²
• kupaonica sa WC-om, 5.00 m²
• spavaća soba II, 12.95 m²
• lođa, (7.10 x 0.75) 4.90 m²
• dvorište/vrt, 88.15 m2
U ISKAZANU CIJENU STANA JE URAČUNATO SVEGA 10% KVADRATURE ZEMLJIŠTA, TAKO DA KUPAC OD površine 88.15 m2 PLAĆA SAMO 8.15 m2!
CIJENA PARKIRNOG MJESTA: 12.5 M2 X 0.25 = 3.125 M2 X 3.000 € = 9.375 € ZA AVANSNO PLAĆANJE U CIJELOSTI, UZ MOGUĆNOST KUPNJE VIŠE PARKIRNIH MJESTA!

ID CODE: 153

Nekretnine Croatia
Mob: +385 91 300 05 70
Tel: +385 42 500 100
E-mail: info@nc.hr
www.nekretninecroatia.hr
Značajke
Vrsta
Stan
Ugovor
Prodaja
Kat
Prizemlje
Katovi zgrade
2
Dizalo
Ne
Površina
78 m²
Prostorije
3
Spavaće sobe
3
Kupaonice
1
Balkon
Ne
Terasa
Ne
Garažno mjesto, parkirna mjesta
1 na zajedničkom parkingu
Grijanje
Centralno, podno grijanje
Klimatizacija
Samostalno, hlađenje/grijanje
Ostale karakteristike
  • Protuprovalna vrata
Informacije o cijeni
Cijena
€ 235.410
Cijena po m²
3.018 €/m²
Energetska učinkovitost

Potrošnja energije

A+

Otkrijte svaki kutak nekretnine
+11
Dodatne mogućnosti

Obratite se oglašivaču

Ili