

Nota
This description has been translated automatically by Google Translate and may not be accurate
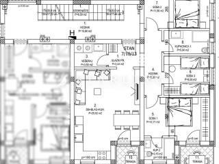
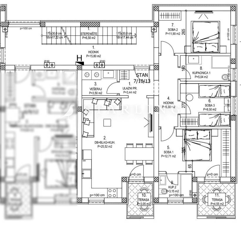
referência: 3185
Ano de construção
2023Aquecimento
Individualizado, de arAr condicionado
Ar condicionado, frio/quenteCertificação energética
Não classificável