Loja - Actividade Comercial para Venda

€ 408.500
3
102 m²

Nota

Anúncio atualizado em 19/02/2026
Descrição

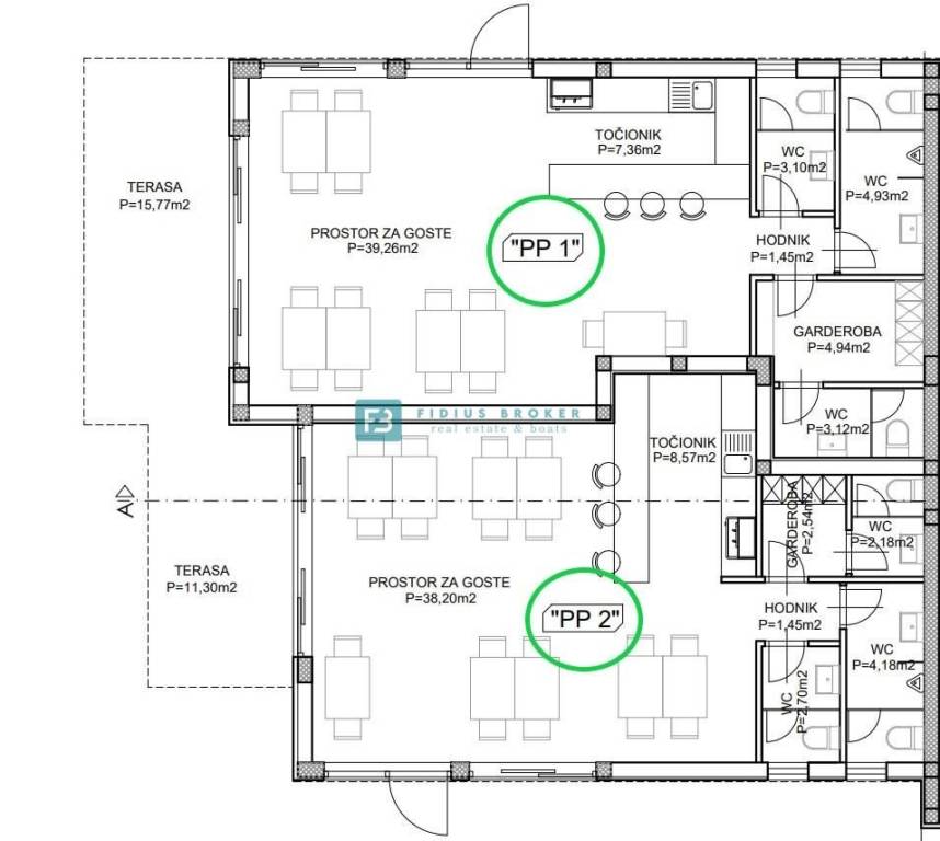
referência: PP12

SRIMA - Na prodaju atraktivni poslovni prostor, na odličnoj lokaciji u mjestu Srima, uz glavnu šetnicu i plažu, 1. red do mora!

Nalazi se u prizemlju stambeno-poslovne zgrade, ukupne korisne površine s koeficijentima 102,05 m2, terase s prekrasnim pogledom, te posjeduju parkirno mjesto.

Poslovni prostor PP2 sastoji se od otvorenog prostora, garderobe, WC-a za osoblje, hodnika, WC-a za žene, WC-a za muškarce. Prostori su prepuni dnevnog svjetla i lijepi pogled na more i arhipelag.

Zbog idealne pozicije i pristupnosti, pogodan je za ugostiteljski objekt svih vrsta.

Cijena je 408.500 € (PDV uključen - kupac je oslobođen plaćanja 3% poreza na promet nekretninama).

Za više informacija kontaktirajte nas putem e-maila ili telefona.

ID CODE: PP12

Fidius Broker
Voditelj ureda
Mob: ++385 91 3375522
Tel: ++385 91 5135719
E-mail: info@fidiusbroker.hr
www.fidiusbroker.hr
Características
Contrato
Venda
Superfície
102 m²
Quartos
3 quartos
Andares do Edifício
3
Informações de preço
Preço
€ 408.500
Preço por m²
4.005 €/m²
Eficiência energética
  • Certificação energética

    Não classificável
Planta
Descubra cada canto da propriedade
+25
Opções adicionais

Contactar o anunciante

Ou