Apartamento T3 Poreč, Luka, Poreč

€ 505.000
3
130 m²
2
Não
Terraço

Nota

Anúncio atualizado em 22/01/2026
Descrição

This description has been translated automatically and may not be accurate

referência: 872878

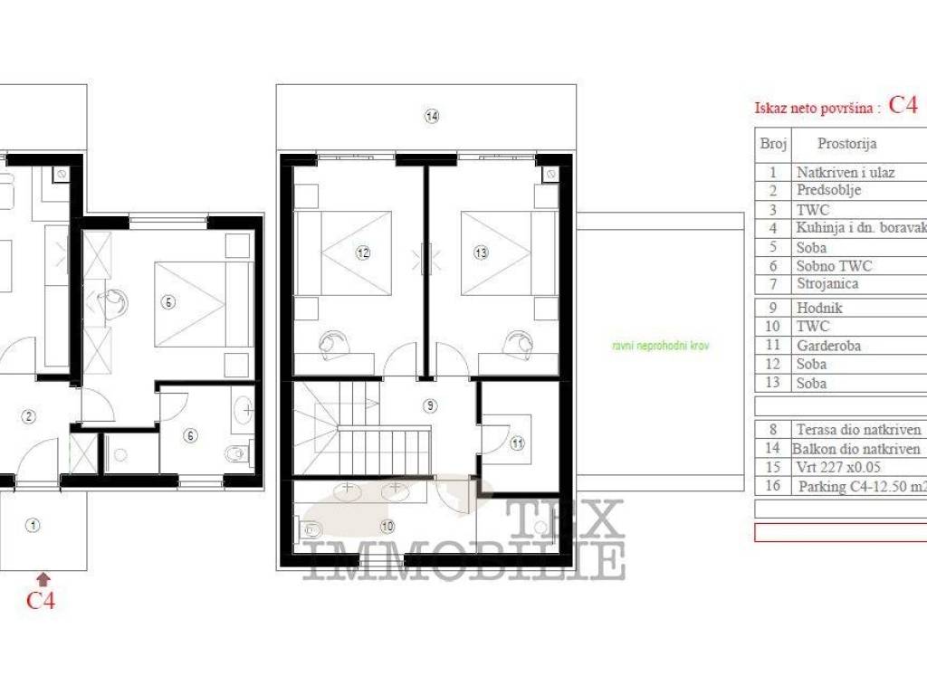
A beautiful house under construction is for sale in Poreč. The house will be located in an attractive location that is ideal for living as well as for renting. The house will have a spacious living room, dining room, and kitchen with an open space concept. Additionally, there will be three bedrooms and a total of two bathrooms. The ground floor will also include a utility room. In the yard, there will be a jacuzzi for 4 people.

The exterior insulation will be made of 10 cm thick stone wool with a density of 110 kg/m3, and the color will be Caparol/JUB. As for the exterior carpentry, it will be installed with triple-glazed glass filled with Argon, the profile thickness will be 8.5 mm, and a mosquito net will be installed. The entrance door will have a fingerprint unlocking system with memory for 6 people. The interior carpentry will be of the BINNI brand, with door heights of 2.30 m and magnetic closing. The interior walls will have additional sound insulation, and the ceilings will be lowered with Knauf. Parquet flooring 1.5-2.0 cm thick from the HARO Germany brand will be installed, and the ceramics will be made of Italian porcelain.

The house will be heated and cooled by Vaillant inverters installed in all rooms, as well as Vaillant heat pumps. The bathroom will be equipped with sanitary elements from Geberit/SEREL, Duravit, and Grohe. The interior stairs will be a combination of granite, wood, and ceramics with a glass railing.

ID CODE: 872878

Tex Immobilie
Agent s licencom
Mob: 0989826003
Tel: 0994705455
E-mail: info@tex-immobilie.com
www.tex-immobilie.com
Características
Tipologia
Duplex
Contrato
Venda
Andares do Edifício
1
Elevador
Não
Superfície
130 m²
Quartos
3
Quartos
3
Casas de banho
2
Varanda
Não
Terraço
Sim
Estacionamento, lugares de estacionamento
2 em estacionamento compartilhado
Aquecimento
Individualizado, de ar
Ar condicionado
Ar condicionado, frio/quente
Informações de preço
Preço
€ 505.000
Preço por m²
3.885 €/m²
Eficiência energética
  • Ano de construção

    2022
  • Aquecimento

    Individualizado, de ar
  • Ar condicionado

    Ar condicionado, frio/quente
  • Certificação energética

    Não classificável
Descubra cada canto da propriedade
+16
Opções adicionais

Contactar o anunciante

Ou