1/7


Apartamento T2 Saldun, Trogir, Trogir
€ 220.000
Anúncio atualizado em 22/01/2026
Descrição
This description has been translated automatically by Google Translate and may not be accurate
referência: 4414
ID CODE: 4414
Maja Tieško
Savjetnik u prodaji
Mob: 091 9869 699
Tel: 01 6231 365
E-mail: maja@eurohome-nekretnine.hr
www.eurohome-nekretnine.hr
Características
- Tipologia
- Apartamento
- Contrato
- Venda
- Elevador
- Não
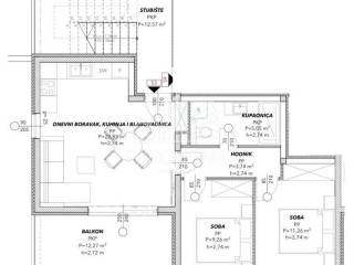
- Superfície
- 52 m²
- Quartos
- 2
- Quartos
- 2
- Casas de banho
- 1
- Varanda
- Sim
- Terraço
- Sim
- Estacionamento, lugares de estacionamento
- 1 em garagem, 1 em estacionamento compartilhado
- Aquecimento
- Individualizado, de ar
- Ar condicionado
- Ar condicionado, frio/quente
Outras características
Informações de preço
- Preço
- € 220.000
- Preço por m²
- 4.231 €/m²
Eficiência energética
Descubra cada canto da propriedade
Opções adicionais