Vivenda familiar Poreč, Luka, Poreč

€ 710.000
5
210 m²
3
Não
Terraço

Nota

Anúncio atualizado em 10/04/2026
Descrição

This description has been translated automatically and may not be accurate

referência: 730

Istria, Poreč area

A charming stone villa in Istrian style with a swimming pool for sale, located 16 km from the city of Poreč and from the sea in the idyllic landscape of the Istrian landscape in a complex of 10 villas.

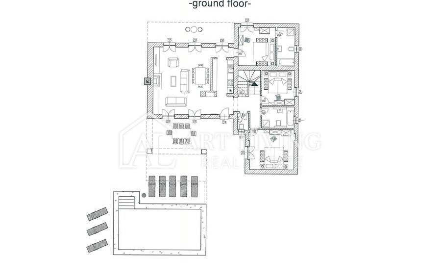
The villa extends over two floors, ground floor and first floor, with an area of 210.06 m2.

On the ground floor of the house there is an entrance, living room, kitchen, open-plan dining room, three bedrooms, one of which has a private bathroom and access to the terrace in the back yard, while the other two bedrooms share a bathroom. From the open-plan living and dining room, there is direct access to the terrace with pergola, sunbathing area, swimming pool and landscaped yard with barbecue.

On the first floor there is one bedroom with its own bathroom.

In the landscaped and fenced yard, there is a beautiful swimming pool with a total area of 32 m2 with a sunbathing area, which is accessed from the covered terrace.
The villa is equipped with rustically designed furniture, and the bedrooms are equipped as a combination of single beds and double beds.

The villa is surrounded by a landscaped garden decorated with Mediterranean plants. which offers privacy and peace on a plot of 890 m2 and two private parking spaces.

The villa was designed in the Istrian rustic style and represents a perfect combination of indigenous design and timeless classics.
The specialty of this villa is the rustically designed white furniture made of Croatian oak

This unique property is the perfect choice for vacation, residence or rental for tourist purposes, a combination of comfort and luxury in the idyll offered by the Istrian landscape.

The house is sold fully furnished and decorated with a fenced plot.
The stated prices of real estate values are exclusive of VAT.

CHARACTERISTICS OF THE VILLA

Swimming pool 32 m2
Indoor fireplace
Covered terrace and barbecue
Peaceful surrounding
Fenced plot
Two parking spaces

Dear clients, it is possible to view the property only with a signed mediation agreement, which is the basis for further actions related to the sale and commission, all in accordance with the Act on mediation in real estate transactions.

"ART LIVING REAL ESTATE" agency, as an authorized real estate broker, charges a brokerage fee in the amount of 3% + VAT at the time of signing the Pre-Contract or Purchase Agreement for the mediation service.

NOTE: We are not responsible for any errors in the property descriptions, but we want to be as precise and accurate as possible

ID CODE: 730

Mia Glad
Voditelj ureda
Mob: 091 784 8083
Tel: +385 91 784 80 83
E-mail: office@artliving-realestate.hr
www.artliving-realestate.hr
Características
Tipologia
Vivenda familiar
Contrato
Venda
Andares do Edifício
1
Elevador
Não
Superfície
210 m²
Quartos
5
Quartos
4
Casas de banho
3
Varanda
Não
Terraço
Sim
Estacionamento, lugares de estacionamento
2 em estacionamento compartilhado
Aquecimento
Individualizado, de ar
Ar condicionado
Ar condicionado, frio/quente
Informações de preço
Preço
€ 710.000
Preço por m²
3.381 €/m²
Eficiência energética
  • Ano de construção

    2003
  • Aquecimento

    Individualizado, de ar
  • Ar condicionado

    Ar condicionado, frio/quente
  • Certificação energética

    Não classificável
Descubra cada canto da propriedade
+20
Opções adicionais

Contactar o anunciante

Ou