Apartamento T2 Poreč, Luka, Poreč

€ 183.134
2
55 m²
1
r/c
Não
Terraço

Nota

Anúncio atualizado em 14/04/2026
Descrição

This description has been translated automatically and may not be accurate

referência: ID02268

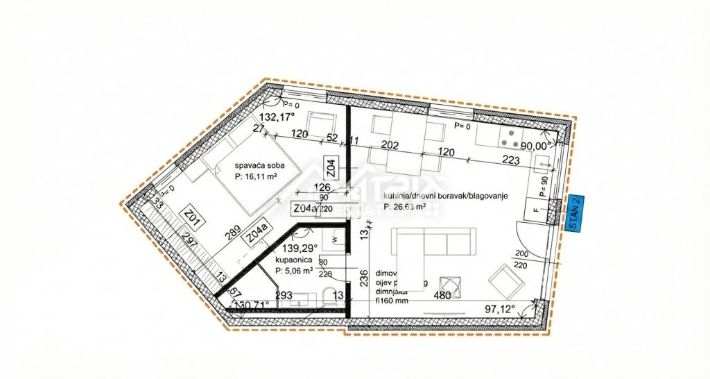
Located in the peaceful settlement near Poreč, this functional ground floor apartment is ideal for family living, a holiday retreat or rental investment. Apartment 2 is part of a new low-rise residential building and offers a rare combination of privacy and outdoor space – featuring a large covered terrace and a private 100 m² garden.

The layout includes an open-concept living room with kitchen and dining area (26.63 m²), one bedroom (16.11 m²), and a bathroom (5.06 m²). The net interior area is 55.5 m², while the total calculated area including the terrace, garden and parking reaches 66.75 m².

The spacious terrace of 30.78 m² is ideal for outdoor relaxation, while the garden offers plenty of room for barbecues, children, pets or a vegetable patch. The property also includes a private parking space.

Equipped with split inverter air conditioning/heating (heat pump), and electric underfloor heating in the bathroom, the apartment ensures year-round comfort.

An excellent choice for those seeking step-free living with generous outdoor space, or as a rental investment with high yield potential.

ID CODE: ID02268

Daniel Matković
Agent s licencom
Mob: +385 95 506 58 05
Tel: +385 52 417 779
E-mail: daniel@matrixrealestate.hr
https://matrixrealestate.hr/

Matrix Real Estate
Voditelj ureda
Mob: +385 52 417 779
Tel: +385 52 417 779
E-mail: info@matrixrealestate.hr
https://matrixrealestate.hr/
Características
Tipologia
Apartamento
Contrato
Venda
Andar
Rés-do-chão
Andares do Edifício
1
Elevador
Não
Superfície
55 m²
Quartos
2
Quartos
1
Casas de banho
1
Varanda
Não
Terraço
Sim
Estacionamento, lugares de estacionamento
1 em estacionamento compartilhado
Ar condicionado
Ar condicionado, frio/quente
Informações de preço
Preço
€ 183.134
Preço por m²
3.330 €/m²
Eficiência energética
  • Ano de construção

    2026
  • Ar condicionado

    Ar condicionado, frio/quente
  • Certificação energética

    Não classificável
Planta
Descubra cada canto da propriedade
+9
Opções adicionais

Contactar o anunciante

Ou