1/4


Escritório - Estúdio para Renda
€ 1.900/mês
Anúncio atualizado em 30/01/2026
Descrição
referência: 5721
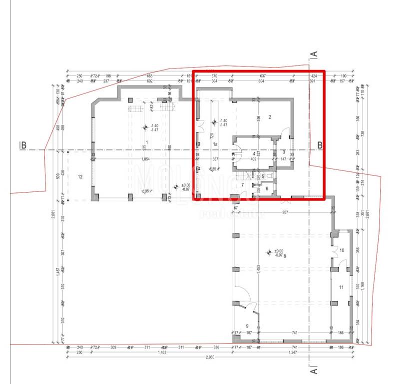
Iznajmljuje se poslovni prostor od 115m2 na odličnoj lokaciji u Opatiji.
Nalazi se na glavnoj cesti te posjeduje 5 ili više parkirnih mjesta za upotrebu, ovisno dogovoru.
Namjena može biti za različite djelatnosti.
Za sve informacije javite se agentu.
Antonio Tadić 0916281888
ID CODE: 5721
Rijeka
Mob: +385 91 6281 888
Tel: +385 51 858 544
E-mail: info@mololongorealestate.com
www.mololongorealestate.com
Características
- Contrato
- Renda
- Tipologia
- Escritório - Estúdio
- Superfície
- 115 m²
Informações de preço
- Preço
- € 1.900/mês
- Preço por m²
- 17 €/m²
Detalhes de custos
- Fiança
- Não indicado
Eficiência energética
Certificação energética
Não classificável
Planta

Descubra cada canto da propriedade
Opções adicionais