1/6


Apartamento T2 Novi Marof, Novi Marof
€ 158.220
Anúncio atualizado em 09/02/2026
Descrição
referência: 1798
ID CODE: 1798
Ante Matušić
Agent s licencom
Mob: 0995068331
E-mail: ante@rednekretnine.com
www.rednekretnine.com
Características
- Tipologia
- Apartamento
- Contrato
- Venda
- Andar
- Rés-do-chão
- Andares do Edifício
- 3
- Elevador
- Sim
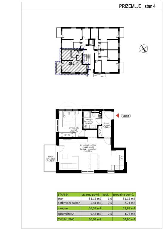
- Superfície
- 58 m²
- Quartos
- 2
- Quartos
- 1
- Casas de banho
- 1
- Varanda
- Sim
- Terraço
- Não
- Estacionamento, lugares de estacionamento
- 1 em estacionamento compartilhado
- Ar condicionado
- Ar condicionado, frio/quente
Informações de preço
- Preço
- € 158.220
- Preço por m²
- 2.728 €/m²
Eficiência energética
Planta

Descubra cada canto da propriedade
Opções adicionais