Apartamento T2 novo, Brodarica - Višnjik, Zadar

€ 230.000
2
76 m²
2

Nota

Anúncio atualizado em 13/05/2026
Descrição

This description has been translated automatically and may not be accurate

referência: 2043/154

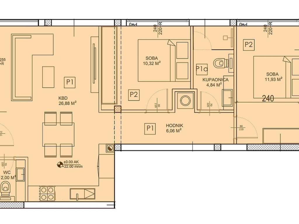
A two-bedroom apartment is for sale in a newly built building near Zadar. The building with a total of nine apartments is located on a plot of land located on elevated terrain with a gentle slope towards the sea, so almost every apartment has a sea view without interference from other properties.



The apartment marked S1 is located on the ground floor of the building, and has a spacious garden and an outdoor parking space included in the price.It consists of a kitchen, dining room and living room, a hallway leading to two bedrooms, and a bathroom and a shared toilet.



Ground floor apartments have a separate entrance that is not connected to the staircase, but is accessed via their own land and passage.



Contact us for more available apartments in the building.

Características
Tipologia
Apartamento
Contrato
Venda
Superfície
76 m²
Quartos
2
Casas de banho
2
Informações de preço
Preço
€ 230.000
Preço por m²
3.026 €/m²
Eficiência energética
  • Estado

    Novo / Em construção
  • Certificação energética

    Livre
Descubra cada canto da propriedade
+4
Opções adicionais

Contactar o anunciante

Ou