map icon

Vila familiar 456 m², nova, Trogir

Trogir
€ 1.980.000
3
456 m²
3+

Nota

Anúncio atualizado em 19/02/2026
Descrição

This description has been translated automatically and may not be accurate

referência: 2029/94

A villa for sale, located in a quiet village near Trogir, is a superb modern design property with a total area of 456 m on a plot of approximately 640 m. Every detail of this villa has been carefully designed to provide comfort, functionality and luxury.



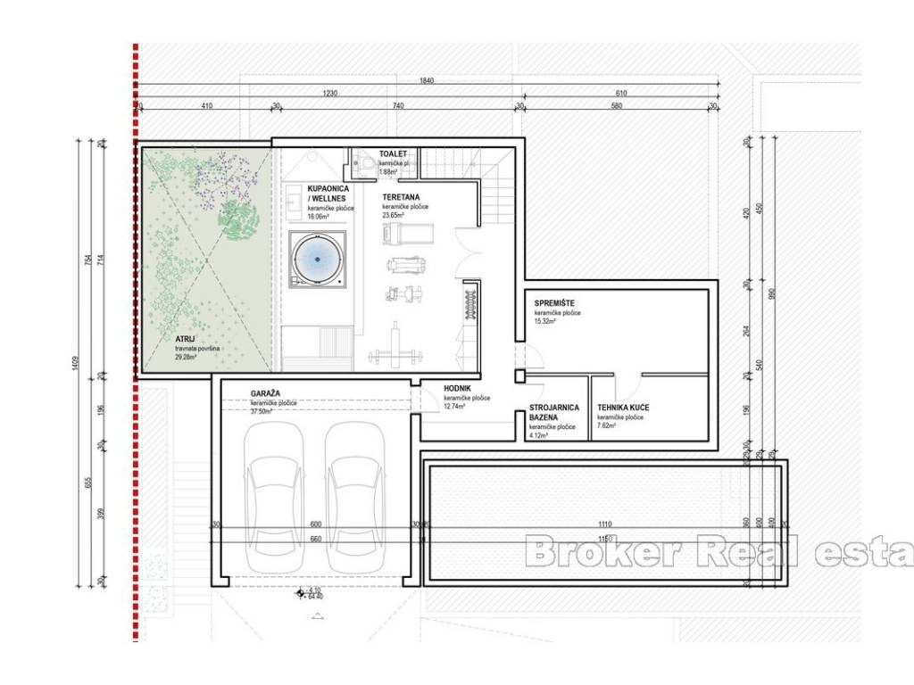
The villa consists of three floors. In the basement there is a garage, storage room and engine room, and additional value is given to the space by a gym and a wellness area with a bathroom and toilet. The atrium allows natural light to flow, making this level bright and pleasant.



The ground floor is designed for socializing and relaxation. The spacious living room is connected to the kitchen and dining room, while additional facilities include a storage room, a cloakroom and a toilet. The outdoor area is enriched with a covered terrace of 48 m and an uncovered terrace of 28 m, a swimming pool and a summer kitchen perfect for enjoying warm Mediterranean evenings.



On the first floor there are three bedrooms, each with its own dressing room and bathroom, providing ultimate privacy. The green roof and covered terrace further highlight the contemporary and ecological approach to design.

The location of the villa is ideal for those seeking a peaceful life by nature and the sea, while at the same time wanting to be close to amenities. This small town offers crystal clear sea, beautiful beaches and the opportunity to enjoy activities such as cycling, sailing and diving. The proximity of UNESCO-listed Trogir and Split airport make this location excellent for a family vacation, permanent residence or investment in a tourist rental.

Características
Tipologia
Vila familiar | Propriedade de luxo
Contrato
Venda
Superfície
456 m²
Quartos
3
Casas de banho
3+
Estacionamento, lugares de estacionamento
1 em garagem, 1 em estacionamento compartilhado
Outras características
  • Piscina
Informações de preço
Preço
€ 1.980.000
Preço por m²
4.342 €/m²
Eficiência energética
  • Estado

    Novo / Em construção
  • Certificação energética

    Livre
Descubra cada canto da propriedade
+4
Opções adicionais

Contactar o anunciante

Ou