Apartamento T2 novo, Plovanija - Vidikovac, Zadar

€ 189.499
2
53 m²
1
r/c

Nota

Anúncio atualizado em 16/03/2026
Descrição

This description has been translated automatically and may not be accurate

referência: 5324

A quality new building project is for sale in a prime location near the city center of Zadar / in the Skročine area.
This is a project under construction for a small residential building, consisting of a total of 6 apartments. The building is designed on 3 floors; ground floor, first and second floors, and there is a parking lot for tenants in the building's yard.
Obtaining a use permit and dividing the building into condominiums is planned by the end of 07/2027.
Payment of the first part of the amount of 10% of the property price (down payment), and the possibility of financing the remaining amount with a housing loan.
 
BUILDING EQUIPMENT:
- Heating and cooling of the apartments will be carried out by a multi-split system of air conditioning units, which will be installed in all rooms
- Installations for electric underfloor heating will be installed in the bathrooms and living room
- Exterior PVC joinery with insulated glass, lift/sliding walls, built-in mosquito nets and electrically controlled ALU roller shutters
- Each apartment has two outdoor parking spaces and one storage room on the ground floor of the building
- First-class floor coverings (ceramics and parquet) - the possibility of choosing from three options offered. Choosing tiles and parquet is possible in the initial stages of the project until the moment of ordering.
- The building will be connected to the complete infrastructure, and a 10 cm thermal facade will be installed
- A video intercom will be installed at the entrance to the building.
 
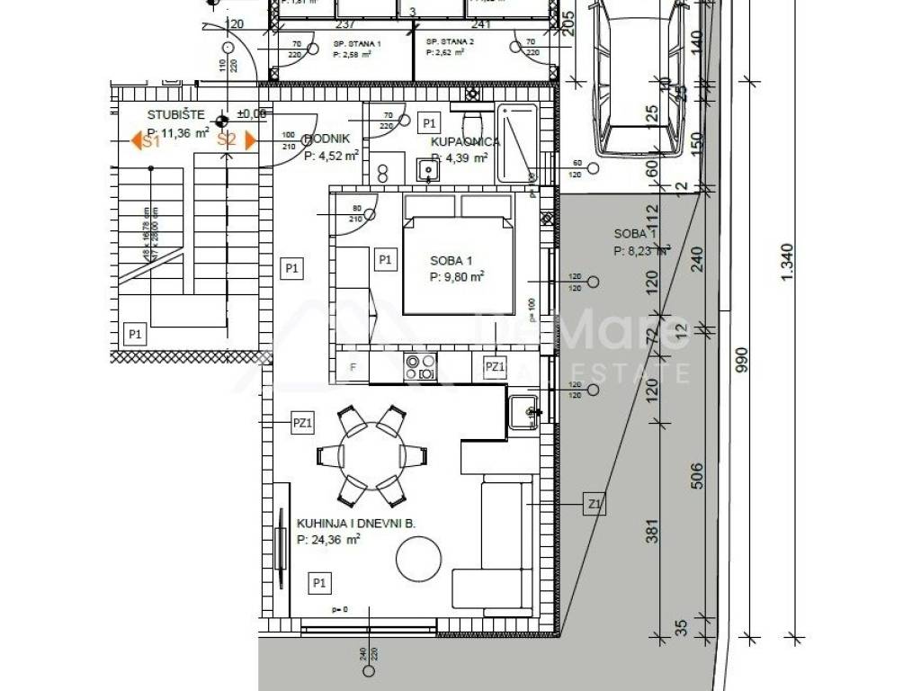
GROUND FLOOR S2: One-bedroom apartment with garden
The apartment is located on the ground floor of the building and consists of:
- Entrance area / hallway - 4.52 m2
- Living room, kitchen and dining room - 24.36 m2
- Bedroom - 9.80 m2
- Bathroom - 4.39 m2
The interior space of the apartment occupies 43.07 m2.
The apartment has a garden of approx. 40 m2, two outdoor parking spaces (25.00 m2) and a storage room on the ground floor of the building (2.62 m2)
The gross area of ​​the apartment is 110.69 m2, the total net area of ​​the apartment with accessories is 53.38 m2.
 
The seller is a legal entity, so the buyer does NOT pay real estate tax.
For a tour of the location and all other information, please contact us!!
 
LOCATION:
The facility is located near all amenities needed for everyday life, and near the bus station.
The distance to the city center / peninsula is 2.5 km, and to the sea and the nearest beach is 1.5 km.
Zadar airport is only 13 km from the city center and is well connected to many European cities and destinations. The Zadar ferry port has lines to most islands, and during the summer season it is a stop for numerous tourist cruisers.
Se quiser saber mais, pode falar com Ivo Strenja.
Características
Tipologia
Apartamento
Contrato
Venda
Andar
Rés-do-chão
Andares do Edifício
2
Superfície
53 m²
Quartos
2
Quartos
1
Casas de banho
1
Estacionamento, lugares de estacionamento
1 em estacionamento compartilhado
Aquecimento
Individualizado, de ar, fonte de alimentação elétrica
Ar condicionado
Ar condicionado, frio/quente
Distância do mar
2 m
Outras características
  • Janelas em vidro / PVC
Detalhe da superfície

Habitação

Andar
Rés-do-chão
Superfície
53,4 m²
Coeficiente
100%
Tipo de superfície
Principal
Sup comercial
53,4 m²
Informações de preço
Preço
€ 189.499
Preço por m²
3.575 €/m²
Detalhes de custos
Despesas de condomínio
Sem taxas de condomínio
Eficiência energética
  • Ano de construção

    2027
  • Estado

    Novo / Em construção
  • Aquecimento

    Individualizado, de ar, fonte de alimentação elétrica
  • Ar condicionado

    Ar condicionado, frio/quente
Descubra cada canto da propriedade
+11
Opções adicionais

Contactar o anunciante

Ou