Apartamento T4 Kantrida, Rijeka, Turan - Kantrida - Costabella, Rijeka

€ 540.000
4
86 m²
1
1
Sim
Terraço

Nota

Anúncio atualizado em 20/03/2026
Descrição

This description has been translated automatically and may not be accurate

referência: JD-7390

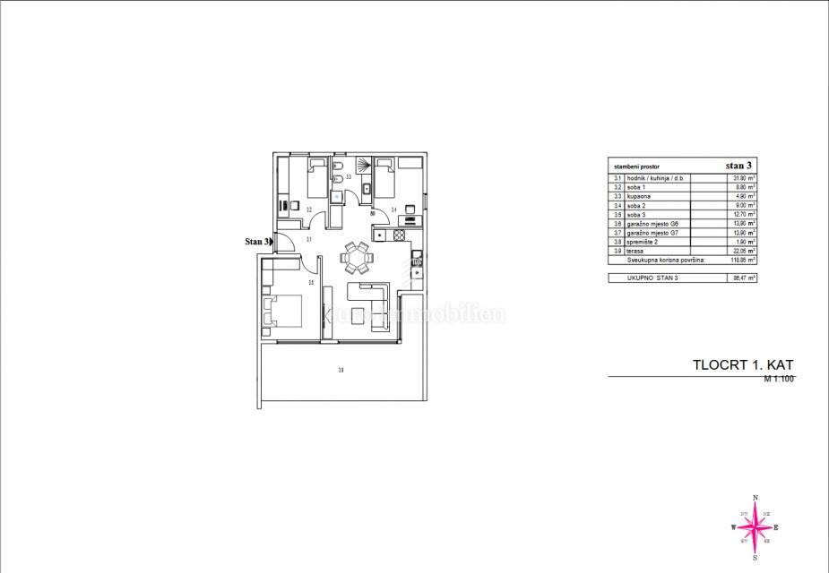
In a prestigious and quiet part of Kantrida, there is a modernly designed building with energy class A++, built to the highest quality standards. On the first floor is an apartment ideal for family life, combining spaciousness, functionality and contemporary design.

The apartment consists of three bedrooms, a spacious living room with kitchen and dining room, a bathroom and an additional guest toilet. Thanks to large openings and high-quality joinery, the space is exceptionally bright and pleasant.

The apartment comes with two parking spaces in the garage, and the building is equipped with an elevator and a smart management system, which allows you to control lighting, heating, cooling and security functions via mobile devices.

Heating and cooling are carried out using a heat pump, underfloor heating and a Mitsubishi VRV system, which ensures high energy efficiency and maximum comfort throughout the year.

The interior is decorated with top-quality materials: oak parquet, Italian ceramics and Laufen and Geberit sanitary ware enhance the impression of elegance and lasting quality. Aluminum-wooden joinery with triple-glazed windows provides excellent thermal and sound insulation.

The building's surroundings are horticulturally designed, with manicured paths and green spaces that create an ambiance of peace and luxury.

A home where every detail has been carefully thought out – an ideal choice for those seeking comfort, quality and a modern lifestyle.

Provizija agencije za kupca iznosi 3% + PDV i plaća se u slučaju kupovine nekretnine kod zaključenja kupoprodajnog Ugovora.

ID CODE: JD-7390

Euro Immobilien d.o.o.
Mob: 00385 (0)99 444 0660
Tel: +385 51 220 024
E-mail: info@euro-immobilien.hr
www.euro-immobilien.hr
Características
Tipologia
Apartamento
Contrato
Venda
Andar
1 andar
Andares do Edifício
2
Elevador
Sim
Superfície
86 m²
Quartos
4
Quartos
3
Casas de banho
1
Varanda
Não
Terraço
Sim
Estacionamento, lugares de estacionamento
1 em garagem, 2 em estacionamento compartilhado
Aquecimento
Individualizado, de ar
Ar condicionado
Ar condicionado, frio/quente
Informações de preço
Preço
€ 540.000
Preço por m²
6.279 €/m²
Eficiência energética

Consumo de energia

A+

Descubra cada canto da propriedade
+24
Opções adicionais

Contactar o anunciante

Ou