Apartamento T4 Kantrida, Rijeka, Turan - Kantrida - Costabella, Rijeka

€ 1.250.000
4
164 m²
1
2
Sim

Nota

Anúncio atualizado em 20/03/2026
Descrição

This description has been translated automatically and may not be accurate

referência: JD-7388

This penthouse, located in the prestigious Kantrida area, is situated in a modern building with an A++ energy rating, constructed according to the highest standards of quality, design, and comfort.

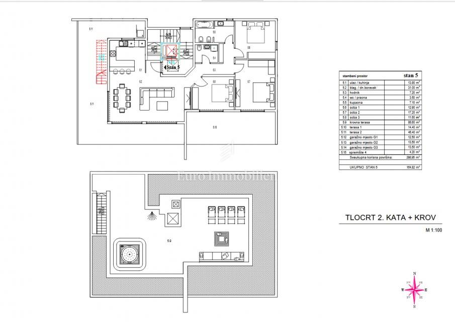
This exclusive apartment occupies the entire top floor of the building, offering complete privacy and the feeling of living in an urban villa. The spacious living area with kitchen and dining room is bathed in natural light thanks to impressive glass walls that open onto the terrace. The layout continues with three elegant bedrooms, a modern bathroom, and a guest toilet.

Special value is added by two large terraces:
- a 14.40 m² terrace
- a 46.40 m² rooftop terrace with panoramic views of the sea and surroundings

The penthouse includes three garage parking spaces, and the building is equipped with an elevator and a smart management system that allows control of lighting, heating, cooling, and security via mobile devices.

Heating and cooling are provided by a heat pump, underfloor heating, and a Mitsubishi VRV system, ensuring top-level energy efficiency and year-round comfort.

The interior exudes sophistication: oak parquet flooring, premium Italian ceramics, Laufen and Geberit sanitary ware, and aluminum-wood joinery with triple glazing providing excellent thermal and sound insulation.

The building’s surroundings are carefully landscaped – pathways and green areas create a harmonious blend of architecture and nature.
The penthouse has a southern orientation, ensuring abundant natural light throughout the day, while the panoramic view provides a sense of freedom and true luxury.
An exclusive home where sophisticated design, comfort, and privacy come together in perfect harmony.

Provizija agencije za kupca iznosi 3% + PDV i plaća se u slučaju kupovine nekretnine kod zaključenja kupoprodajnog Ugovora.

ID CODE: JD-7388

Euro Immobilien d.o.o.
Mob: 00385994440500
Tel: +385 51 220 024
E-mail: info@euro-immobilien.hr
www.euro-immobilien.hr
Características
Tipologia
Apartamento
Contrato
Venda
Andar
2 andar
Andares do Edifício
2
Elevador
Sim
Superfície
164 m²
Quartos
4
Quartos
3
Casas de banho
1
Varanda
Não
Terraço
Não
Estacionamento, lugares de estacionamento
1 em garagem, 3 em estacionamento compartilhado
Aquecimento
Individualizado, de ar
Ar condicionado
Ar condicionado, frio/quente
Informações de preço
Preço
€ 1.250.000
Preço por m²
7.622 €/m²
Eficiência energética

Consumo de energia

A+

Descubra cada canto da propriedade
+42
Opções adicionais

Contactar o anunciante

Ou