map icon

Apartamento novo, rés-do-chão, Zadar

Zadar
€ 1.664.820
5+
277 m²
3
r/c
Sim
Terraço

Nota

Anúncio atualizado em 23/12/2025
Descrição

This description has been translated automatically and may not be accurate

referência: 4907-1

For sale is a luxurious and modern new building project with a sea view, built to the highest construction standards, in Zadar in a sought-after location in the Diklo area, 100 m from the sea and a well-maintained beach!!
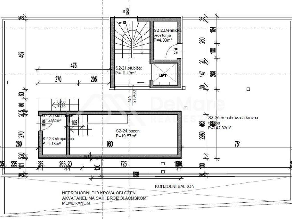
The building has a ground floor, first, second floor and a roof terrace with a beautiful panoramic view of the sea, and consists of a total of 3 residential units.
BUILDING EQUIPMENT:
- Reinforced concrete structure
- Thermal facade of the building / Roman Traventin stone
- High-quality anthracite ALU joinery with built-in roller shutters and mosquito nets
- Asphalted access to the building
- Covered terraces with glass railings

PENTHOUSE LUX Apartment with a swimming pool on the roof terrace
On the ground floor there is an entrance area, a spacious storage room, a staircase and an elevator that connects all floors up to the roof terrace.
The first floor is accessed by a landing leading to the second floor where there is a luxurious three-bedroom apartment, consisting of:
Spacious open space living room/ 24.30 m2,
Kitchen/18.64 m2,
Dining room/ 10.91 m2,
Toilet/laundry room/ 4.88 m2,
Storage room/ 4.61 m2,
Three comfortable LUX bedrooms/ 11.83 m2, 17.97 m2, 12.18 m2 with
private wardrobes/ 11.03 m2, and
bathrooms/ 3.17 m2, 3.16 m2, 13.50 m2
The living room and dining room lead to a covered terrace (53.25 m2) with a beautiful panoramic view of the sea and islands.

The bedrooms also have access to a covered terrace with a glass fence, which offers a beautiful view of the sea.
On the roof above the apartment there is a beautiful, spacious terrace with a panoramic view of 142.32 m2, which can be arranged and equipped for relaxation and outdoor living, according to the wishes of the future owners.
The total net value of the apartment is 277.47 m2.

APARTMENT EQUIPMENT:
- Underfloor heating installed throughout the apartment / Heat pump
- Heating and cooling of the rooms with air conditioning
- High-quality Italian ceramic tiles
- Top-quality sanitary ware
- Entrance door - fire and burglar-proof
For a tour of the location / property and all other information, please contact us.

De Mare nekretnine d.o.o.
Tel: +385 23 300 400
Mail: info@demare.hr

LOCATION:
Diklo is known as an elite part of the city of Zadar, and is located right next to the coast and the beach with plenty of holiday accommodation, restaurants, bars and shops. A long local promenade with a beach, leads to the local marina, and from the pebble coast there is a beautiful view of the islands of the Zadar archipelago.
The location of the property is excellent due to the proximity of the sea and the beach approx. 100 m, the distance to the city center of Zadar is approx. 3.5 km, and from Zemunik airport it is approx. 13 km.
Características
Tipologia
Apartamento
Contrato
Venda
Andar
Rés-do-chão
Elevador
Sim
Superfície
277 m²
Quartos
5+
Quartos
3
Casas de banho
3
Terraço
Sim
Ar condicionado
Centralizado, frio/quente
Outras características
  • Porta blindada
  • Piscina
Informações de preço
Preço
€ 1.664.820
Preço por m²
6.010 €/m²
Eficiência energética
  • Ano de construção

    2025
  • Estado

    Novo / Em construção
  • Ar condicionado

    Centralizado, frio/quente
  • Certificação energética

    Não classificável
Descubra cada canto da propriedade
+13
Opções adicionais

Contactar o anunciante

Ou