Apartamento T1 novo, Voštarnica - Poluotok, Zadar

€ 191.880
1
47 m²
1
Não

Nota

Anúncio atualizado em 21/03/2026
Descrição

referência: iro-359

Manja stambena zgrada sa 9 stambenih jedinica, Zadar (Borik) NOVOGRADNJA.
Sastoji se od podruma, prizemlja i dva kata.
Zgrada se radi najkvalitetnijim materijalima (fasada debljine 10 cm – očekivani energetski razred A+, protuprovalna i protupožarna ulazna vrata u stanove, PVC vanjska stolarija s komarnicima i električnim podizačima roleta, podno grijanje na električnu energiju u čitavom stanu, kade u kupaonicama, staklene ograde na balkonima, video portafon na ulazu zgrade).
Kupac može birati keramiku ili parket na podovima.
Svaki stan ima svoju ostavu u podrumu zgrade i jedno vanjsko parkirno mjesto.
Zgrada će biti spojena na gradsku kanalizaciju.
Planirani završetak izgradnje i useljenje 2/3 mjesec 2026. god.

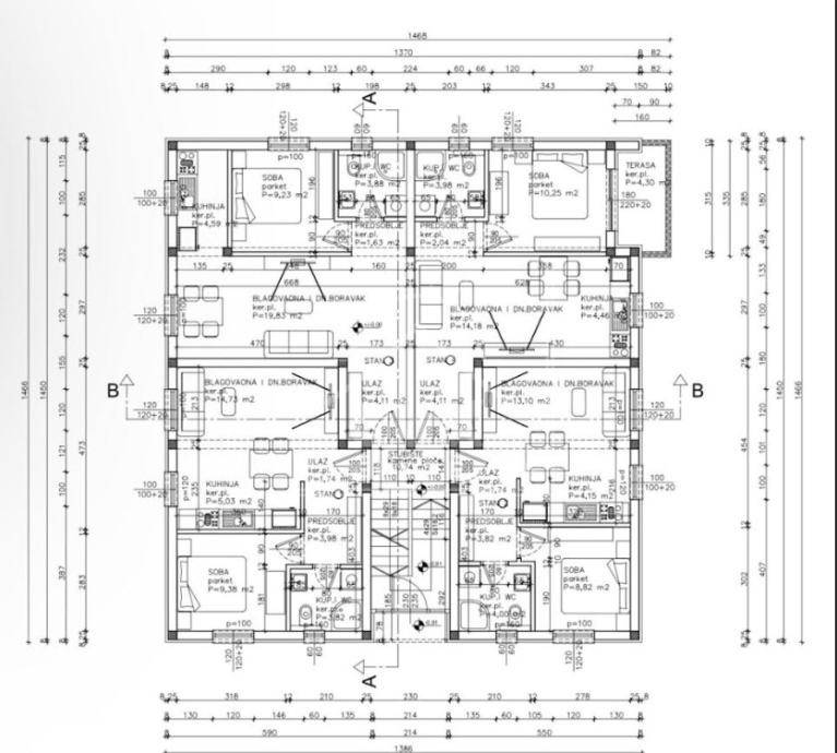
STAN S2 u prizemlju, jednosoban s vrtom, sadrži: ulazni dio (pov. 1.74 m2), hodnik/predsoblje (pov. 3.82 m2), dnevni boravak s blagovaonicom i kuhinjom (pov. 13.10 m2 + 4.15 m2), spavaću sobu (pov. 8.82 m2) i kupaonicu (pov. 4.00 m2).
UKUPNO: 35.63 m2.
Stanu pripada i ostava u podrumu zgrade pov. 13.78 m2, te vanjsko parkirno mjesto na okućnici zgrade i vrt pov. 26.70 m2.
Ukupna korisna površina stana sa svim dodatcima iznosi 47.97 m2.



Zadar, Borik, novogradnja, blizina mora, vrt
Características
Tipologia
Apartamento | Classe propriedade média
Contrato
Venda
Andares do Edifício
2
Elevador
Não
Superfície
47 m²
Quartos
1
Quartos
1
Casas de banho
1
Varanda
Não
Terraço
Não
Aquecimento
Individualizado, piso radiante
Ar condicionado
Ar condicionado
Distância do mar
500 m
Informações de preço
Preço
€ 191.880
Preço por m²
4.083 €/m²
Eficiência energética

Consumo de energia

A+

Descubra cada canto da propriedade
+8
Opções adicionais

Contactar o anunciante

Ou