Vivenda familiar 119 m², nova, Malinska-Dubašnica

€ 550.000
4
119 m²
2
Terraço

Nota

Anúncio atualizado em 12/04/2026
Descrição

This description has been translated automatically and may not be accurate

referência: EI-6745

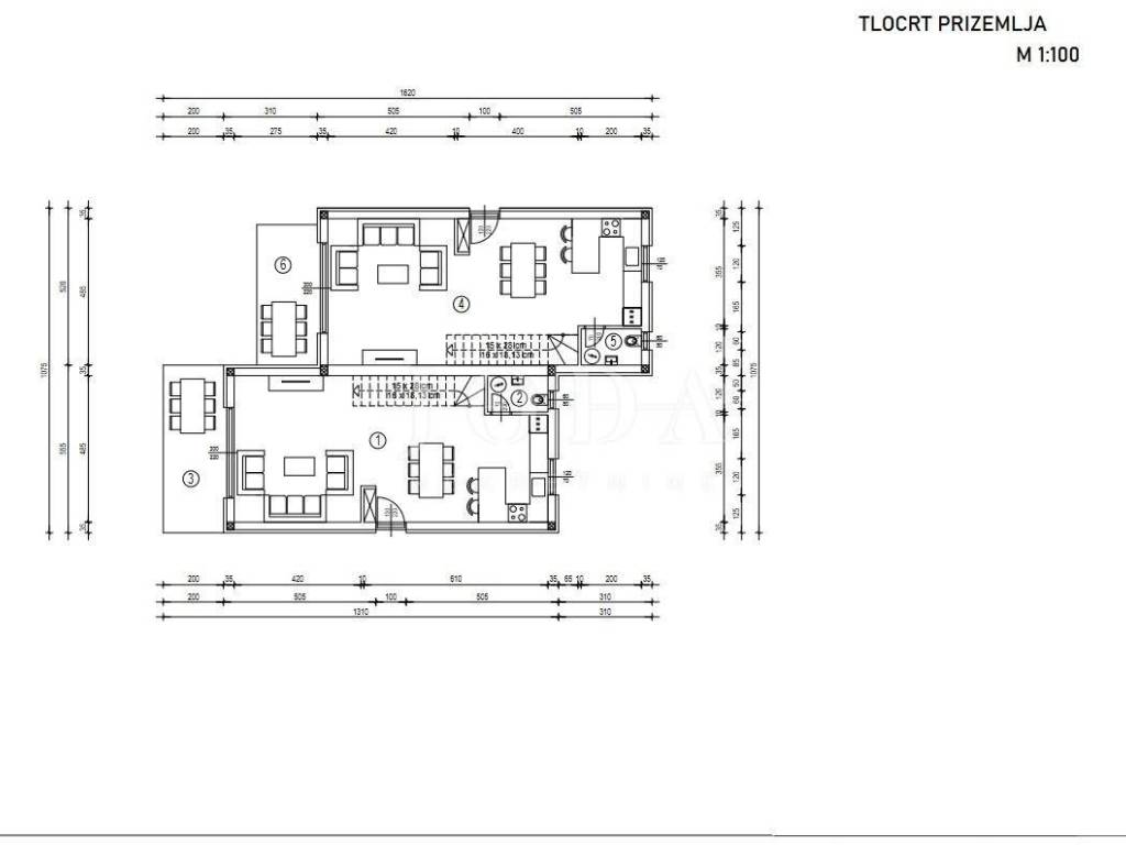
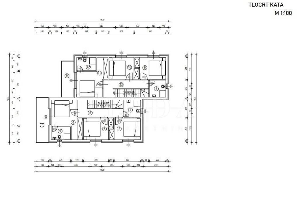
Malinska, a quality new building of 119.59 m2 is for sale, 600 m from the sea and the center of Malinska. It consists of a ground floor and a first floor. The ground floor includes an open space that includes a kitchen with a dining room and living room, a toilet and a covered terrace. On the first floor there are three bedrooms, one of which has its own bathroom and a covered terrace with a sea view, and another bathroom. On the plot of approximately 200 m2 there will be a swimming pool and a large terrace, and the house will also have two parking spaces. The house will be made of quality materials, all rooms will be air-conditioned, electric underfloor heating will be installed, ALU shutters with sliding walls, and parts of the facade and plot will be covered with natural stone.

Construction is expected to begin in 9/2025, and the completion date is expected for 6/2026. For the stated price, it is being sold on a turnkey basis.

ID CODE: EI-6745
Características
Tipologia
Vivenda familiar
Contrato
Venda
Andar
1
Superfície
119 m² | comercial 319 m²
Quartos
4
Quartos
3
Casas de banho
2
Varanda
Não
Terraço
Sim
Ar condicionado
Ar condicionado, frio/quente
Outras características
  • Piscina
Detalhe da superfície

Habitação

Andar
1
Superfície
119,0 m²
Coeficiente
100%
Tipo de superfície
Principal
Sup comercial
119,0 m²

Terreno

Andar
Rés-do-chão
Superfície
200,0 m²
Coeficiente
100%
Tipo de superfície
Acessórios
Sup comercial
200,0 m²
Informações de preço
Preço
€ 550.000
Preço por m²
1.724 €/m²
Eficiência energética
  • Ano de construção

    2026
  • Estado

    Novo / Em construção
  • Ar condicionado

    Ar condicionado, frio/quente
  • Certificação energética

    Livre
Descubra cada canto da propriedade
+5
Opções adicionais

Contactar o anunciante

Ou