Apartamento T4 novo, rés-do-chão, Centar, Krk

€ 850.000
4
159 m²
2
1
Sim
Varanda
Terraço

Nota

Anúncio atualizado em 12/04/2026
Descrição

This description has been translated automatically and may not be accurate

referência: EI-4068

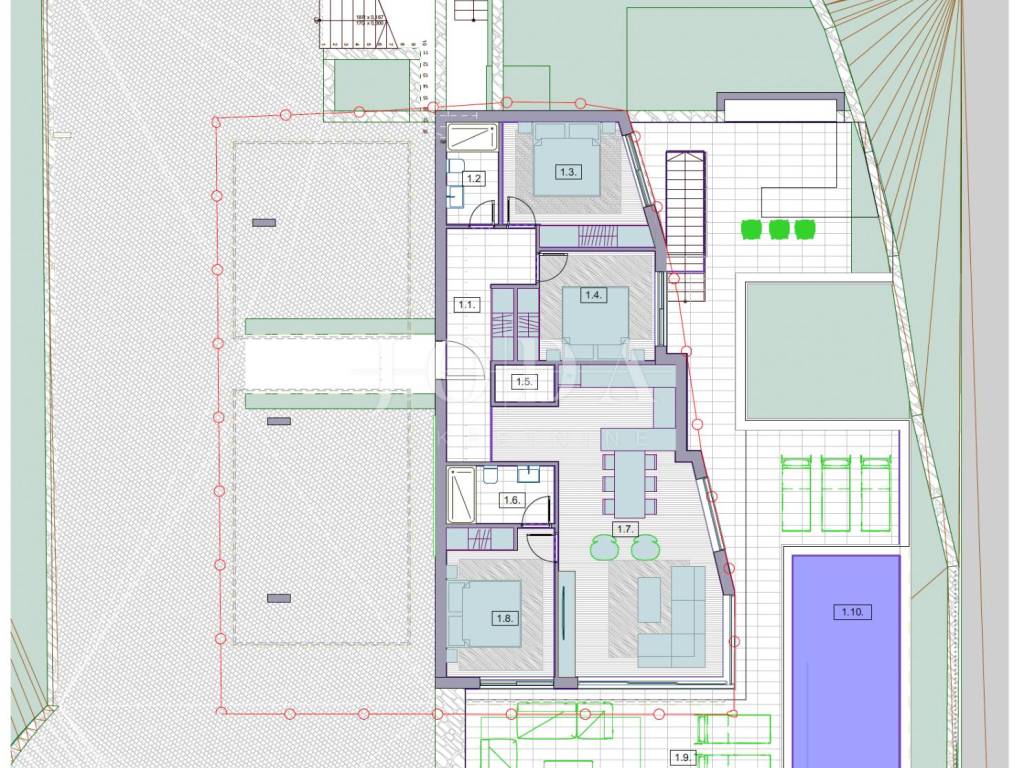
Apartments are for sale in a beautiful luxury villa on the island of Krk!

The apartment consists of a hallway, living room with kitchen and dining area, three bedrooms, two bathrooms, and a storage room. It is located on the ground floor and has a garden of 100 m2. In the garden, there is a terrace, swimming pool, sun dec,k and summer kitchen for socializing with friends and family. The apartment also has a storage room and two parking spaces. It will be equipped with air conditioning, and quality carpentry, and the owner can choose the details related to interior design.
Great opportunity for a luxury property in a great location near the sea and all necessary facilities!

ID CODE: EI-4068
Características
Tipologia
Apartamento
Contrato
Venda
Andar
1
Elevador
Sim
Superfície
159 m² | comercial 259 m²
Quartos
4
Quartos
3
Casas de banho
2
Varanda
Sim
Terraço
Sim
Ar condicionado
Ar condicionado, frio/quente
Detalhe da superfície

Habitação

Andar
1
Superfície
159,0 m²
Coeficiente
100%
Tipo de superfície
Principal
Sup comercial
159,0 m²

Terreno

Andar
Rés-do-chão
Superfície
100,0 m²
Coeficiente
100%
Tipo de superfície
Acessórios
Sup comercial
100,0 m²
Informações de preço
Preço
€ 850.000
Preço por m²
3.282 €/m²
Eficiência energética
  • Ano de construção

    2023
  • Estado

    Novo / Em construção
  • Ar condicionado

    Ar condicionado, frio/quente
  • Certificação energética

    Livre
Descubra cada canto da propriedade
+11
Opções adicionais

Contactar o anunciante

Ou