Apartamento T3 novo, rés-do-chão, Vodice

€ 464.000
3
103 m²
2
r/c
Terraço

Nota

Anúncio atualizado em 20/12/2025
Descrição

This description has been translated automatically and may not be accurate

referência: 28761

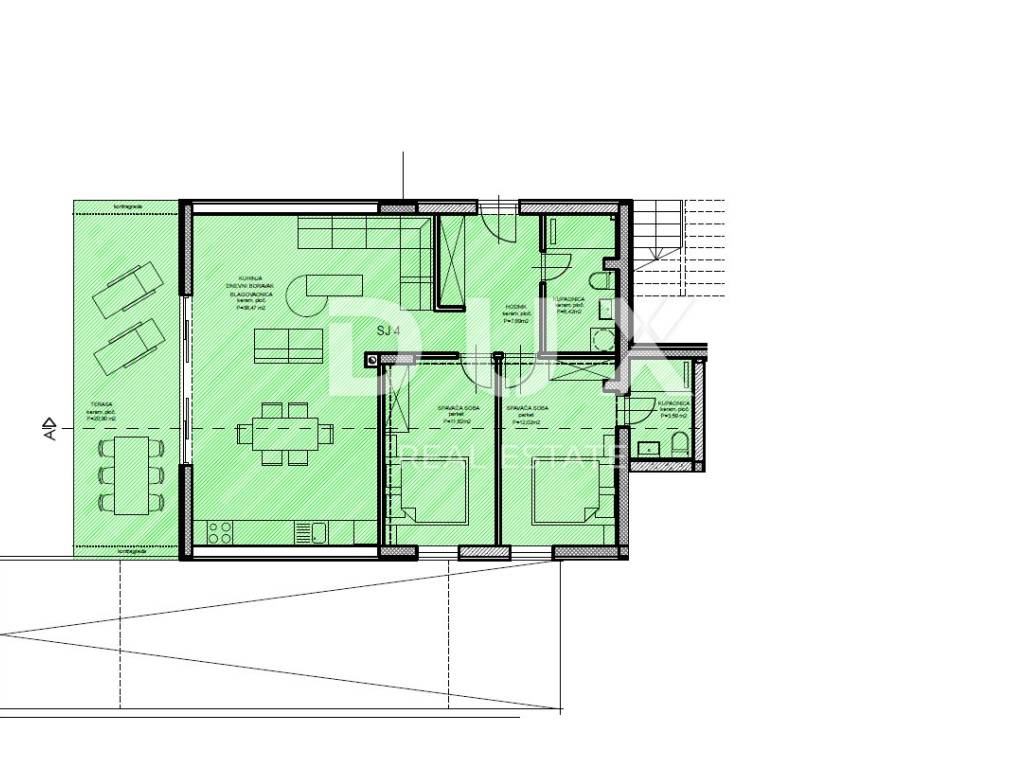
ŠIBENIK, VODICE - Luxurious apartment in a new building S4

A beautiful apartment of 89.59m2 with a terrace of 20m2 is for sale in Vodice near Šibenik. The total useful value of the apartment area together with all accessories is 103.85m2. It is located on the ground floor of a residential building with 10 apartments, which is located only 80 meters from the main beach. There is a cinema and a park within a radius of only 80 meters, and the town center is only 200 meters away, which offers a variety of facilities and recreational opportunities. The apartment consists of a hallway, a kitchen connected to a dining room and a living room, which together create a functional space for meals and socializing. The apartment has a bedroom with a bathroom that increases privacy, an additional bathroom and another bedroom. A special advantage of the apartment is the terrace that offers a view of the sea and a space for outdoor relaxation, and offers the possibility of installing a jacuzzi or even a smaller pool, creating a private corner for enjoyment and relaxation. Next to the terrace is a garden, further enriching the space with natural greenery. The apartment is equipped with underfloor heating, providing warmth in every corner, while all rooms are equipped with air conditioners for optimal air conditioning. The building is covered with a 10 cm thick EPS thermal envelope, which guarantees a comfortable temperature during all seasons and achieves high energy efficiency. During the construction, extremely high-quality materials were used, which ensured not only durability, but also the aesthetic appeal of the space that will last for many years. This apartment is being sold unfurnished, giving future owners the freedom to personalize the space according to their own preferences. This beautiful apartment provides you with a parking space in the yard. Nearby is the islet of Prvić, and the center of Šibenik is 12 km away. The city of Split is 69 km away, and the nearest airport is 49 km away. There are several National Parks and Nature Parks in the area. Kornati National Park, also known as the pearl of the Adriatic, is located in the immediate vicinity of Šibenik. A little further north is the Vrana Lake Nature Park, a natural ornithological reserve with rich flora and fauna. Dear clients, the agency commission is charged in accordance with the General Business Conditions www.dux-nekretnine.hr/opci-uvjeti-poslovanja.

ID CODE: 28761

Ivan Bego
Agent pripravnik
Mob: +385 91 312 1121
Tel: +385 91 480 8808
E-mail: ivan@dux-dalmacija.com
www.dux-nekretnine.hr
Se quiser saber mais, pode falar com Ivan Bego.
Características
Tipologia
Apartamento
Contrato
Venda
Andar
Rés-do-chão
Superfície
103 m²
Quartos
3
Quartos
2
Casas de banho
2
Varanda
Não
Terraço
Sim
Estacionamento, lugares de estacionamento
1 em garagem
Ar condicionado
Ar condicionado, frio/quente
Informações de preço
Preço
€ 464.000
Preço por m²
4.505 €/m²
Eficiência energética
  • Ano de construção

    2024
  • Estado

    Novo / Em construção
  • Ar condicionado

    Ar condicionado, frio/quente
  • Certificação energética

    Livre
Descubra cada canto da propriedade
+7
Opções adicionais

Contactar o anunciante

Ou