Vivenda familiar 80 m², Premantura, Pomer, Medulin

€ 340.000
2
80 m²
3

Nota

Anúncio atualizado em 03/05/2026
Descrição

This description has been translated automatically and may not be accurate

referência: 2657

The municipality of Medulin is located in the very south of the Istrian Peninsula in the coastal area. Medulin, once a fishing village, is today a modern tourist center that has emerged as one of the most desirable tourist destinations in Croatia in the last ten years, as evidenced by the highest number of overnight stays in recent years.

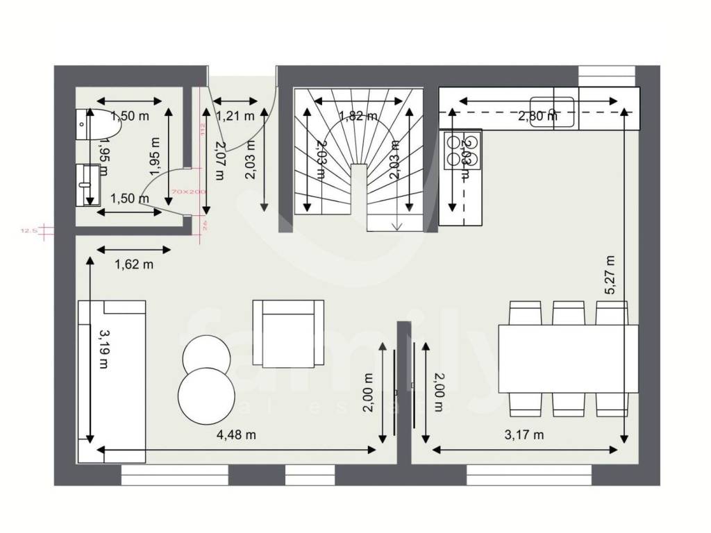
It is in one of the most attractive settlements within the Municipality of Medulin, in Premantura, that the construction of this extremely modern and high-quality terraced house with a total of 6 residential units is planned by a proven investor. The aforementioned property will be located on the ground floor of a building with a total living area of 80 m2 and will spread over two floors. The ground floor of the aforementioned property will consist of a bright living room with access to the garden, which is planned to have an area of approximately 30 m2, a high-quality kitchen with a dining area, a guest toilet and a storage room located under the stairs. An internal staircase will lead to the second floor, which will consist of two comfortable bedrooms and two bathrooms. The heating and cooling system is planned to be regulated by means of 3 air conditioning units, one each in the bedrooms and one unit is planned in the living room. Electric underfloor heating will also be installed in the kitchen, living room and bathroom. The apartment will be equipped with three-layer PVC carpentry in anthracite color, lifting and sliding doors, electric aluminum blinds and aluminum entrance doors. The floors will be covered with high-quality parquet and ceramics with the option of choosing according to your own preferences. The apartment will also have 2 parking spaces.

The above-mentioned high-quality real estate represents a very interesting opportunity considering its quality of construction, the functional layout of the rooms, as well as the location itself, close to all accompanying facilities, and therefore offers the future owner an excellent opportunity, whether for family life or for engaging in tourist rental, which would certainly accelerate the return of invested funds.

FOR ALL OTHER INFORMATION, CALL:

+385 98 174 8680

dean.zunic@family-nekretnine.hr

Dean Zunic

Licensed agent
Características
Tipologia
Vivenda familiar
Contrato
Venda
Superfície
80 m²
Quartos
2
Quartos
2
Casas de banho
3
Mobilado
Não
Estacionamento, lugares de estacionamento
2 em estacionamento compartilhado
Ar condicionado
Frio/quente
Informações de preço
Preço
€ 340.000
Preço por m²
4.250 €/m²
Eficiência energética
  • Ano de construção

    2025
  • Ar condicionado

    Frio/quente
  • Certificação energética

    Livre
Descubra cada canto da propriedade
+20
Opções adicionais

Contactar o anunciante

Ou