Отдельный дом на одну семью Nin, Nin

€ 850 000
3
255 m²
3
Нет
Терраса

Пометка

Объявление обновлено 15.04.2026
Описание

This description has been translated automatically and may not be accurate

ID: 18

TOP OFFER!
ONLY 170 METERS FROM THE BEACH!
ROOF TERRACE WITH PANORAMIC VIEW!
EXCELLENT LOCAL INFRASTRUCTURE!

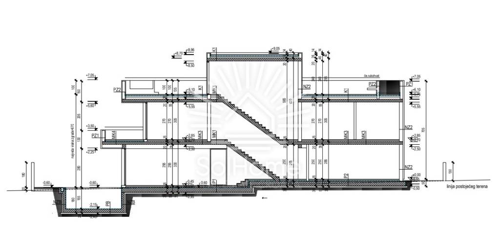
A beautiful modern house near Zadar is for sale. It features a highly functional layout with a ground floor, first floor, and a rooftop terrace.

Underfloor heating throughout the house and air conditioning in each room provide year-round comfort.

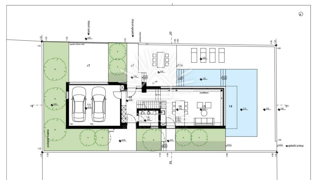
The ground floor (92.40 m²) includes an entrance, kitchen with dining area, living room, and guest toilet.

Adjacent to the house is a garage and storage room totaling 34 m².

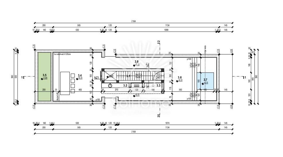
The first floor (96.50 m²), accessed via an internal staircase, features a hallway and three bedrooms, each with its own private bathroom.

The master bedroom includes a 13.9 m² balcony with sea view.

A 72.80 m² roof terrace offers panoramic views of the surrounding area.

The total living area is 225 m², situated on a 411 m² plot.
The yard includes a 53 m² swimming pool, parking space, summer kitchen, and grill area.

Located in a quiet and well-connected area, just 170 meters from a beautiful pebble beach, restaurants, and shops.
All necessary amenities for everyday living are within walking distance.

The buyer has the option to choose interior materials and design in agreement with the seller.

Feel free to contact us for more information!

ID CODE: 18

Lumare Realestate
Agent s licencom
Mob: +49 163 635 49 30
E-mail: info@lumare-realestate.hr
www.lumare-realestate.com
Характеристики
Типология
Отдельный дом на одну семью
Договор
Продажа
Лифт
Нет
Площадь
255 m²
Помещения
3
Спальни
3
Ванные
3
Балкон
Нет
Терраса
Да
Гараж, машиноместа
1 в частный гараж/парковка, 3 в общая парковка/гараж
Отопление
Автономное, воздушное
Кондиционер
Автономное, холод/тепло
Другие характеристики
  • Сигнализация
Информация о ценах
Цена
€ 850 000
Цена за м²
3 333 €/m²
Энергоэффективность

Потребление энергии

A

Планировка
Откройте для себя каждый уголок объекта недвижимости
+11
Доп. опции

Свяжитесь с рекламодателем

Или