Отдельный дом на несколько семей Poreč, Luka, Пореч

€ 948 750
4
183 m²
3+
Нет

Пометка

Объявление обновлено 22.01.2026
Описание

This description has been translated automatically and may not be accurate

ID: ID03056

In a peaceful village surrounded by vineyards and olive groves, this modern semi-detached villa is the perfect choice for those seeking privacy, comfort, and top-quality living. With a private pool, a spacious garden, and its own parking space, this property offers the ideal blend of luxury and natural surroundings.

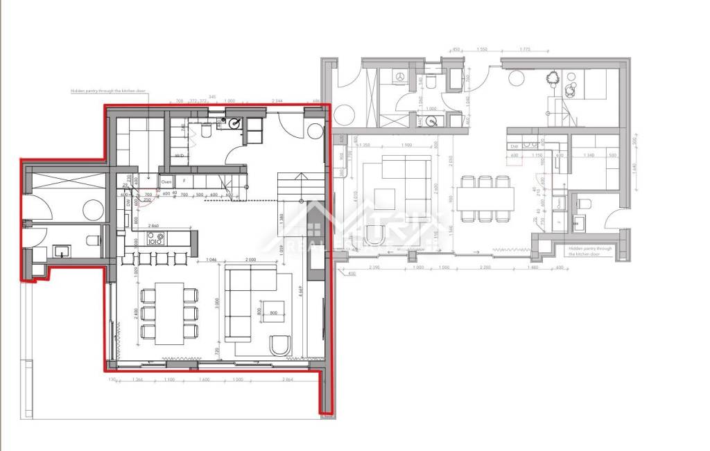
The villa is situated on a 692 m² plot, with a living area of 183 m², thoughtfully designed to maximize space and functionality. The ground floor consists of a spacious living room connected to the dining area and a modern, fully equipped kitchen, creating a comfortable and practical space for everyday living. Additional rooms include a storage room, a technical room, and a utility room, while guests have access to both an indoor and an outdoor toilet. Large glass doors allow plenty of natural light to flow in, seamlessly connecting the interior with the outdoor spaces and enhancing the sense of openness.

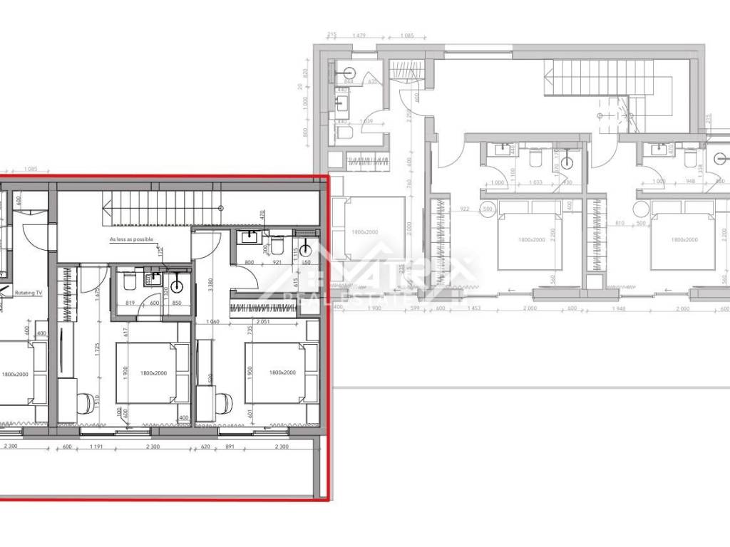
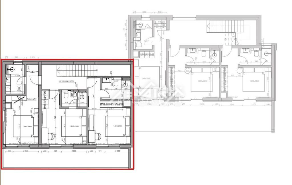
The upper floor features three elegantly designed bedrooms, each with its own en-suite bathroom and breathtaking views of the surrounding landscape. The master bedroom has access to a covered terrace, while an additional open terrace provides even more space for outdoor relaxation.

The exterior of the villa is just as impressive, with a 36 m² swimming pool situated next to a spacious covered terrace of 43.51 m², perfect for sunbathing and social gatherings. The landscaped garden with an automatic irrigation system ensures year-round greenery and freshness, while the elevated location offers complete peace and privacy.

Built to the highest standards, the villa is equipped with underfloor heating, air conditioning, a modern security system, outdoor lighting, an electric entrance gate, aluminum joinery with electric shutters, and premium materials such as ceramic tiles and Hans Grohe sanitary ware. Automatic lighting, video surveillance, and the option to install a smart home system further enhance the level of luxury and security.

Located in an attractive area, the villa offers stunning sea views and close proximity to amenities such as cycling trails, wine cellars, and fine restaurants. Whether you are looking for a perfect home, a holiday retreat, or an investment for tourist rentals, this villa represents an outstanding opportunity to live in harmony with nature and modern comfort.

ID CODE: ID03056

Lemi Brajković Bassanese
Suradnik u procesu obuke
Mob: +385 99 206 38 91
Tel: +385 52 417 779
E-mail: lemi@matrixrealestate.hr
https://matrixrealestate.hr/

Matrix Real Estate
Voditelj ureda
Mob: +385 52 417 779
Tel: +385 52 417 779
E-mail: info@matrixrealestate.hr
https://matrixrealestate.hr/
Характеристики
Типология
Отдельный дом на несколько семей
Договор
Продажа
Лифт
Нет
Площадь
183 m²
Помещения
4
Спальни
3
Ванные
3+
Балкон
Нет
Терраса
Нет
Гараж, машиноместа
2 в общая парковка/гараж
Кондиционер
Автономное, холод/тепло
Другие характеристики
  • Сигнализация
Информация о ценах
Цена
€ 948 750
Цена за м²
5 184 €/m²
Энергоэффективность
  • Кондиционер

    Автономное, холод/тепло
  • Энергетическая сертификация

    Не классифицирована
Планировка
Откройте для себя каждый уголок объекта недвижимости
+30
Доп. опции

Свяжитесь с рекламодателем

Или