1/40


Трехкомнатная квартира Petrčane, Zadar - Okolica, Petrčane - Kožino, Задар
€ 267 840
Объявление обновлено 09.03.2026
Описание
ID: A-3334-S
ID CODE: A-3334-S
Alma Cipurković
Mob: +385 (0)91 400 1616
Tel: +385 (0)99 284 1984
E-mail: alma@perlanekretnine.hr
www.perlanekretnine.hr
Iva Prtenjača
Mob: +385 (0)91 400 1414
Tel: +385 (0)99 284 1984
E-mail: iva@perlanekretnine.hr
www.perlanekretnine.hr
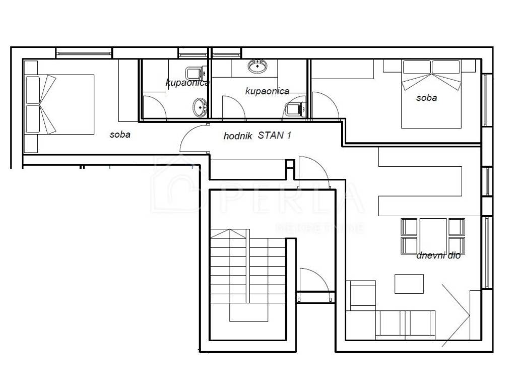
Характеристики
- Типология
- Квартира
- Договор
- Продажа
- Этаж
- Нулевой этаж
- Этажность здания
- 2
- Лифт
- Нет
- Площадь
- 83 m²
- Помещения
- 3
- Спальни
- 2
- Ванные
- 2
- Балкон
- Нет
- Терраса
- Нет
- Гараж, машиноместа
- 2 в общая парковка/гараж
- Отопление
- Автономное, воздушное
Информация о ценах
- Цена
- € 267 840
- Цена за м²
- 3 227 €/m²
Откройте для себя каждый уголок объекта недвижимости
Доп. опции