1/6


Трехкомнатная квартира Novi Marof, Novi Marof
€ 164 052
Объявление обновлено 26.01.2026
Описание
This description has been translated automatically by Google Translate and may not be accurate
ID: 1801
ID CODE: 1801
Ante Matušić
Agent s licencom
Mob: 0995068331
E-mail: ante@rednekretnine.com
www.rednekretnine.com
Характеристики
- Типология
- Квартира
- Договор
- Продажа
- Этаж
- 1 этаж
- Этажность здания
- 3
- Лифт
- Да
- Площадь
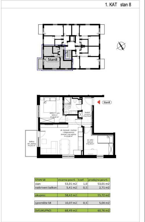
- 60 m²
- Помещения
- 3
- Спальни
- 2
- Ванные
- 1
- Балкон
- Да
- Терраса
- Нет
- Гараж, машиноместа
- 1 в общая парковка/гараж
- Кондиционер
- Автономное, холод/тепло
Информация о ценах
- Цена
- € 164 052
- Цена за м²
- 2 734 €/m²
Энергоэффективность
Планировка

Откройте для себя каждый уголок объекта недвижимости
Доп. опции